
GRK-ImmoWert GmbH
Frau Johanna Heidel
034 ···
Nr. anzeigenPreise & Kosten
Provision für Käufer
3,570 % inkl. ges. MwSt.
Lage
Das Objekt befindet sich im Stadtteil Eutritzsch, nördlich des Leipziger Stadtzentrums. Dieser gehört zum Stadtbezirk Nord und grenzt an die Stadtteile Gohlis und Mockau sowie im Süden an das Zentrum-Nord. Trotz der Nähe zur Innenstadt besitzt er als früheres Dorf noch immer einen ruhigen wohnlichen Charme. Dabei ist es...
Die Wohnung
Wohnungslage
5. Geschoss
Bezug
2016
Derzeitige Nutzung
vermietet
Wohnanlage
Energie & Heizung
Warum sehe ich diese Anzeige? – Du siehst diese Anzeige basierend auf Ihrer Navigation auf unserer Website und den Suchkriterien, die du verwendet hast.
Energieausweis: für diesen Gebäudetyp nicht notwendig
Weitere Energiedaten
Energieträger
Fernwärme
Heizungsart
Fußbodenheizung
Details
Objektbeschreibung
Das Industriedenkmal Castellum befindet sich in der Dessauer Str. 40 und wurde ca. 1928 - 1930 erstmalig erbaut. Nach langer industrieller Nutzung wurde das Objekt 2016 exklusiv und hochwertig vollsaniert und erstmalig nun auf moderne Wohnwünsche angepasst. Das Objekt umfasst 75 Wohnheiten, welche sich auf 5 Volletagen sowie...
Ausstattung
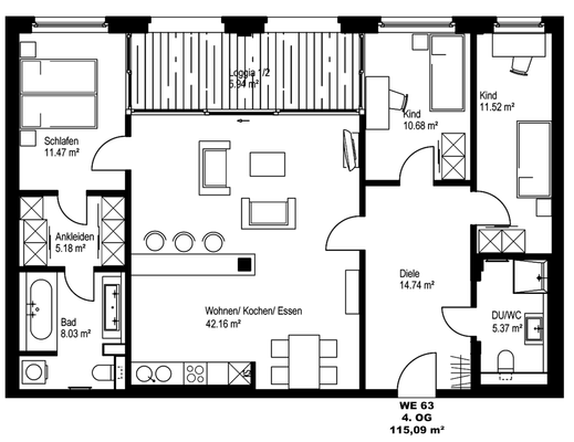
Wir bieten Ihnen eine exklusiv sanierte 4-Zimmerwohnung mit großzügiger Loggia, zwei Bädern und hochwertiger Gesamtausstattung zum Kauf. Die Wohnung befindet sich im 4. Obergeschoss des Hauses und verfügt über ca. 115,09 qm.
Das Highlight der Wohnung ist geräumige Wohn-, Ess- und Kochbereich (ca. 42 qm), welcher als...
Weitere Informationen
sonstige Angaben
Courtagepassus
Der Maklervertrag mit der GRK-ImmoWert GmbH kommt durch die Bestätigung der Inanspruchnahme unserer Maklertätigkeit in Textform zustande. Die Höhe der Courtage richtet sich nach den ab dem 23.12.2020 in Kraft getretenen gesetzlichen Regelungen. Demnach beträgt die Courtage für beide...
Anbieter der Immobilie
GRK-ImmoWert GmbH
Wächterstraße 15, 04107 Leipzig
Online-ID: 2l7l45w
Finde Angebote wie dieses
Hier geht es zu unserem Impressum, den Allgemeinen Geschäftsbedingungen, den Hinweisen zum Datenschutz und nutzungsbasierter Online-Werbung.