
Thomas Girkinger Immobilien GmbH
Herr Thomas Girkinger akad.IM
+43 ···
Nr. anzeigenPreise & Kosten
Provision für Käufer
3% des Kaufpreises zzgl. 20% USt.
Büro-/Praxisfläche
Baujahr
1945
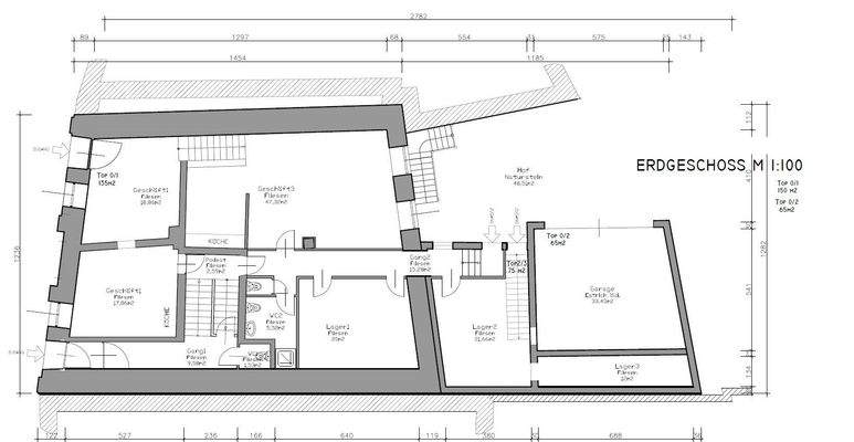
Geschoss
Erdgeschoss
Energie & Heizung
Warum sehe ich diese Anzeige? – Du siehst diese Anzeige basierend auf Ihrer Navigation auf unserer Website und den Suchkriterien, die du verwendet hast.
Heizwärmebedarf (HWB)
121,00 kWh/(m²·a)
Gesamtenergieeffizienz (fGEE)
1,95
Weitere Energiedaten
Energieträger
Fernwärme, Gas
Details
Objektbeschreibung
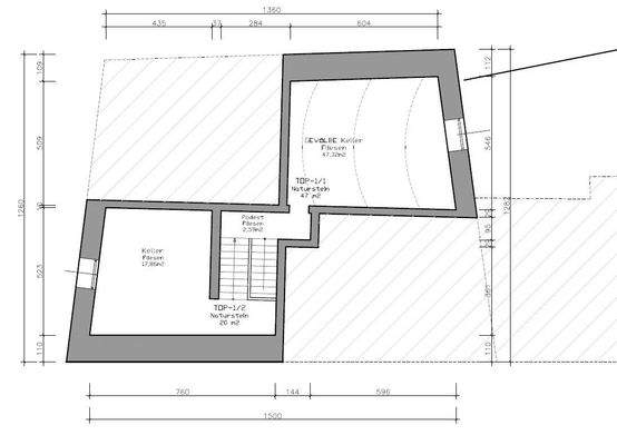
Büro- oder Geschäftslokal mit ca. 157 m² in Toplage von Ebelsberg - Nähe Schloss Ebelsberg
Das Büro- bzw. Geschäftslokal mit einer Nutzfläche von ca. 215 m² befindet sich im Erdgeschoss eines Gebäudes aus den 1940er-Jahren mit einem hofseitigen Zubau aus ca. 1975. Die Beheizung erfolgt über eine Kombination aus Erdgas...
Weitere Informationen
Stichworte
Nutzfläche: 215,00 m², Anzahl der Badezimmer: 1, Anzahl der separaten WCs: 1, Bundesland: Oberösterreich
Anbieter der Immobilie
Thomas Girkinger Immobilien GmbH
Kroatengasse 32, 4020 LINZ
Online-ID: 2l7lc5y
Referenznummer: OBGC2025100209584095773990ddf81
Finde Angebote wie dieses
Hier geht es zu unserem Impressum, den Allgemeinen Geschäftsbedingungen, den Hinweisen zum Datenschutz und nutzungsbasierter Online-Werbung.