
van Döllen Immobilien GmbH
Frau Jessica Zeiter
+49 ···
Nr. anzeigenPreise & Kosten
Kaution
9.600,00 2 Monatskaltmieten
Provision für Mieter
provisionsfrei
Warum sehe ich diese Anzeige? – Du siehst diese Anzeige basierend auf Ihrer Navigation auf unserer Website und den Suchkriterien, die du verwendet hast.
Lage
Dieses Gewerbeobjekt befindet sich in attraktiver aber dennoch ruhiger Lage im nördlich gelegenen Stadtteil Nadorst. Das Umfeld ist durch eine Mischung aus Wohn- und Gewerbenutzungen geprägt und bietet eine gute Infrastruktur.
Die Autobahnanbindung der A28 sowie der A29 sind in nur 600 m Entfernung über die Nadorster...
Büro-/Praxisfläche
Kategorie
Bürofläche
Baujahr
1973
Bezug
sofort
Sitzplätze
8
Geschoss
1. Geschoss
Energie & Heizung
Warum sehe ich diese Anzeige? – Du siehst diese Anzeige basierend auf Ihrer Navigation auf unserer Website und den Suchkriterien, die du verwendet hast.
Weitere Energiedaten
Energieträger
Gas
Heizungsart
Zentralheizung
Details
Objektbeschreibung
Sie suchen eine geräumige Bürofläche für Ihr wachsendes Team? Dann haben wir genau das richtige Mietangebot für Sie!
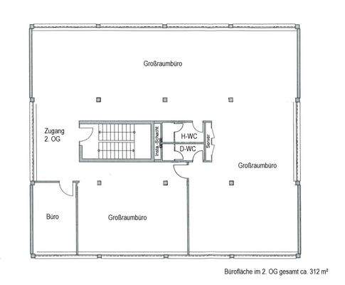
Die zur Vermietung stehende Bürofläche befindet sich im 1. und 2. Obergeschoss und umfasst insgesamt ca. 600 m² Nutzfläche. Davon entfallen jeweils ca. 288 m² auf das 1. Obergeschoss sowie ca. 312 m²...
Ausstattung
Ausstattungsmerkmale sind u. a.:
- Baujahr 1973, Aufstockung des 2. OG im Jahr 1997
- vermietbare Gesamtfläche von ca. 600 m² verteilt auf das 1. und 2. Ober- bzw. Dachgeschoss
- insgesamt 5 abgeschlossene Räume für Büros oder Personal, 3 Großraumbüros oder Konferenzräume mit ca. 42 m², 148 m² und 188 m², 1...
Weitere Informationen
Sonstiges
Diese Gewerbeflächen können ab dem 01. Dezember 2025 angemietet werden.
Die monatliche Kaltmiete für diese Flächen liegt bei netto 8,00 €/m² zuzüglich einer Nebenkostenpauschale in Höhe von netto 2,00 €/m². Daraus ergibt sich eine monatliche Gesamtmiete von insgesamt 10,00 €/m² zzgl. MwSt. Bei der...
Anbieter der Immobilie
van Döllen Immobilien GmbH
Kreyenstraße 41, 26127 Oldenburg
Online-ID: 2l7tg5w
Referenznummer: A3276
Finde Angebote wie dieses
Hier geht es zu unserem Impressum, den Allgemeinen Geschäftsbedingungen, den Hinweisen zum Datenschutz und nutzungsbasierter Online-Werbung.