
Immocenter Ungarn | Hotel Consulting Meyer Kft
Herr C.Meyer REBA Immobilien AG
+49 ···
Nr. anzeigenPreise & Kosten
Provision für Käufer
2,54% des Kaufpreises zzgl. MwSt
Als Käufer zahlen Sie bei diesem Objekt 2,54% inkl. ungarischer MwSt gegen Rechnungslegung und Unterzeichnung des Kaufvertrages. Weitere Informationen siehe Provisionshinweis.
Lage
Das entscheiden Sie :-)
Wir haben hervorragende Grundstücke für Sie in Westungarn
Das Haus
Energie & Heizung
Warum sehe ich diese Anzeige? – Du siehst diese Anzeige basierend auf Ihrer Navigation auf unserer Website und den Suchkriterien, die du verwendet hast.
Weitere Energiedaten
Haustyp
Fertighaus, Niedrigenergiehaus
Energieträger
Elektro
Heizungsart
Luft-/Wasser-Wärmepumpe
Details
Objektbeschreibung
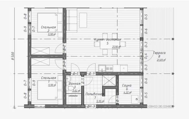
Fertighaus am Standort Ihrer Wahl - schlüsselfertig ab 1.250 EUR/m² mit Wärmepumpe, Fußbodenheizung & Solarmodulen (Obj.-Nr. CM245)
Preisbeispiel: ab 1.250 EUR / m² (z. B. 100 m² ? 125.000 EUR) - Haustyp: Fertighaus, 1 Ebene, 3 Zimmer / 2 Schlafzimmer / 1 Bad - Ausstattung: Einbauküche, Terrasse, seniorengerecht -...
Weitere Informationen
Provisionshinweis
2,54% des Kaufpreises zzgl. MwSt
Als Käufer zahlen Sie bei diesem Objekt 2,54% inkl. ungarischer MwSt gegen Rechnungslegung und Unterzeichnung des Kaufvertrages. In diesem Preis enthalten ist die
- Überprüfung des Grundbuchs nach Lastenfreiheit und Eigentümerrechten
- Vermittlung eines...
Anbieter der Immobilie
Immocenter Ungarn | Hotel Consulting Meyer Kft
Fö U. 122, 8394 Alsopahok | Héviz
Online-ID: 2l86r5x
Referenznummer: CM245
Finde Angebote wie dieses
Hier geht es zu unserem Impressum, den Allgemeinen Geschäftsbedingungen, den Hinweisen zum Datenschutz und nutzungsbasierter Online-Werbung.