

Grundstück zum Kauf99000 €183 €/m²540 m² Grundstück
99000 €
183 €/m²
540 m² Grundstück
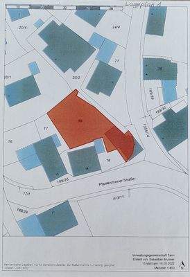
UNSCHLAGBAR Flexibel bebaubares Grundstück: Doppelhaus oder Zweifamilienhaus oder 2 x Tinyhouses
Merkmale
- 540 m² Grundstück
- voll erschlossen
Grundrisse
Verschaffe dir einen genauen Überblick über die Raumaufteilung.

Realisiere Dein Projekt
Bausubstanz und Energie
Möchtest du Details zum Energieverbrauch?

Preisdetails
Kaufpreis
99000 €
183,33 €/m²
Provision für Käufer
3,57 %
Geschätzte Gesamtkosten
102.534 €1
Kaufpreis
99.000 €
Kaufnebenkosten
3.534 €
2Provision für Käufer (3,57%)
3.534 €
1Der angezeigte Wert ist eine automatisch berechnete Schätzung von immowelt.
2Bei den Angaben handelt es sich um ortsübliche Werte. Individuelle Kosten können abweichen.
Lage

Zimmerner Straße 1, Tann (84367)
Weitere Services
Lust auf eine Besichtigung?
Eine Frage zur Immobilie?
Über den Anbieter
Südliche Münchner Str. 34, 82031 Grünwald
Partnerschaft

Frau Christine WagnerDein Kontakt
Online-ID: 25JF67PP6XYG


CW Immobilien
Wie zufrieden bist du mit dieser Seite (nicht mit der Immobilie selbst)?

