

Hanse Makler Hamburg e.K.
Herr Alexander Kofanow
040 ···
Nr. anzeigenPreise & Kosten
Provision für Käufer
provisionsfrei
Lage
Die Immobilie befindet sich in einer ruhigen und familienfreundlichen
Wohngegend in Seevetal, die durch ihre hervorragende Infrastruktur
besticht. In unmittelbarer Nähe finden Sie mehrere Schulen, darunter
die Grundschule Seevetal und die Gesamtschule, die beide fußläufig
erreichbar sind und eine hohe...
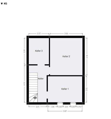
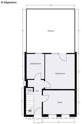
Das Haus
Geschosse
3 Geschosse
Baujahr
1960
Derzeitige Nutzung
frei
Energie & Heizung
Warum sehe ich diese Anzeige? – Du siehst diese Anzeige basierend auf Ihrer Navigation auf unserer Website und den Suchkriterien, die du verwendet hast.
Energieausweistyp
Bedarfsausweis
Gebäudetyp
Wohngebäude
Baujahr laut Energieausweis
1960
Wesentliche Energieträger
Gas
Gültigkeit
10.02.2023 bis 09.02.2033
Effizienzklasse
B
Endenergiebedarf
71,60 kWh/(m²·a)
Weitere Energiedaten
Energieträger
Gas
Heizungsart
Zentralheizung
Details
Objektbeschreibung
Das hier angebotene Reihenmittelhaus wurde in massiver Bauweise im Jahr 1960 errichtet. Eine umfassende Kernsanierung fand im Jahr 2022 statt und bietet modernen Wohnkomfort auf drei Etagen. Die hochwertige Ausstattung und die durchdachte Raumaufteilung sogen für ein angenehmes Wohnflair und erfüllen die Ansprüche an...
Weitere Informationen
Merkmale der Modernisierung
- Hochwertige Außenrollläden an den Fenstern
- Neueindeckung des Daches
- Installation eines energieeffizienten Wärmedämmverbundsystems im Außenbereich
- Erweiterung des Obergeschosses durch die Installation einer neuen Gaube
sowie den Einbau von hochwertigen bodentiefen Fenstern mit...
Anbieter der Immobilie

Online-ID: 2l8cw5k
Finde Angebote wie dieses
Hier geht es zu unserem Impressum, den Allgemeinen Geschäftsbedingungen, den Hinweisen zum Datenschutz und nutzungsbasierter Online-Werbung.