

David Borck Immobiliengesellschaft mbH
Frau Linda Horvath
+49 ···
Nr. anzeigenPreise & Kosten
Provision für Käufer
3,57 % inkl. gesetzl. MwSt.
Lage
Konradshöhe im Nordwesten Berlins steht für naturnahes Wohnen mit hohem Erholungswert. In einer gewachsenen Umgebung mit Einfamilien- und Reihenhäusern, altem Baumbestand und gepflegten Gärten bietet der Ortsteil ruhiges Wohnen abseits des Trubels - ohne Verzicht auf städtische Anbindung. Nur wenige Minuten entfernt laden die...
Das Haus
Kategorie
Doppelhaushälfte
Baujahr
1967
Bezug
sofort
Energie & Heizung
Warum sehe ich diese Anzeige? – Du siehst diese Anzeige basierend auf Ihrer Navigation auf unserer Website und den Suchkriterien, die du verwendet hast.
Energieausweistyp
Bedarfsausweis
Gebäudetyp
Wohngebäude
Wesentliche Energieträger
Gas
Gültigkeit
27.08.2025 bis 26.08.2035
Effizienzklasse
G
Endenergiebedarf
215,00 kWh/(m²·a)
Weitere Energiedaten
Energieträger
Gas
Heizungsart
offener Kamin, Zentralheizung
Details
Objektbeschreibung
Nur wenige Schritte vom Tegeler Forst entfernt, ermöglicht diese Doppelhaushälfte naturnahes Wohnen in einer gepflegten Anlage. Als Teil einer kleinen Wohnungseigentümergemeinschaft mit fünf Einheiten überzeugt das Objekt durch einen besonders großzügigen, durch Teilungserklärung zugewiesenen Gartenanteil von rund 235 m² -...
Ausstattung
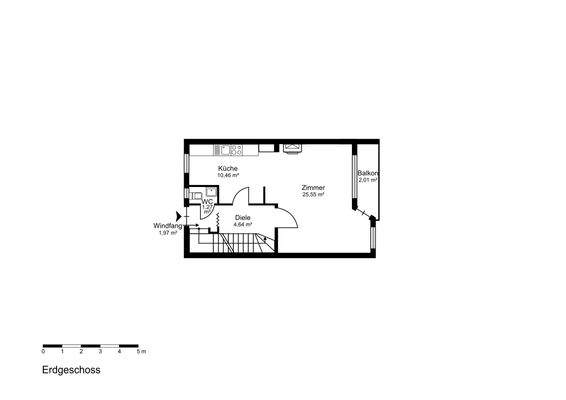
Doppelhaushälfte in ruhiger Lage
4 Zimmer + Ankleide
Souterrain mit Tageslichtzimmer, Sauna, 2 Duschen, WC, Abstellraum
Hochparterre: offener Wohn-/Essbereich, neuwertige EBK, Kamin, Balkon, Gäste-WC
Obergeschoss: 2 Zimmer, Ankleide, Bad mit Wanne, weiterer Balkon
Neue Gastherme (2022), Warmwasseraufbereiter...
Preisinformation
1 Garagenstellplatz
Weitere Informationen
Stichworte
Garage vorhanden, Anzahl der Badezimmer: 2, Anzahl Balkone: 1, Gartenfläche: 235,00 m², Bundesland: Berlin, 3 Etagen, modernisiert: 2024, modernisiert
Anbieter der Immobilie

David Borck Immobiliengesellschaft mbH
Schlüterstr. 45, 10707 Berlin

Online-ID: 2l8d55d
Referenznummer: 6091
Finde Angebote wie dieses
Hier geht es zu unserem Impressum, den Allgemeinen Geschäftsbedingungen, den Hinweisen zum Datenschutz und nutzungsbasierter Online-Werbung.