

Immoraum GmbH
Herr Raphael Jung
+49 ···
Nr. anzeigenPreise & Kosten
Provision für Mieter
provisionsfrei
Warum sehe ich diese Anzeige? – Du siehst diese Anzeige basierend auf Ihrer Navigation auf unserer Website und den Suchkriterien, die du verwendet hast.
Lage
Die Hedelfinger Straße 103 in Stuttgart-Wangen befindet sich in einer gut angebundenen Lage im Osten der Stadt, direkt am Neckarufer zwischen den Stadtteilen Wangen und Untertürkheim. Durch die Nähe zur B10 und zur Autobahn A8 ist die Anbindung für den Autoverkehr hervorragend, und auch die Innenstadt ist schnell erreichbar...
Büro-/Praxisfläche
Bezug
sofort
Energie & Heizung
Warum sehe ich diese Anzeige? – Du siehst diese Anzeige basierend auf Ihrer Navigation auf unserer Website und den Suchkriterien, die du verwendet hast.
Wärme
Strom
Energieausweistyp
Verbrauchsausweis
Gebäudetyp
Nicht-Wohngebäude
Endenergieverbrauch (Wärme)
60,00 kWh/(m²·a)
Endenergieverbrauch (Strom)
31,00 kWh/(m²·a)
Weitere Energiedaten
Energieträger
Fernwärme
Details
Objektbeschreibung
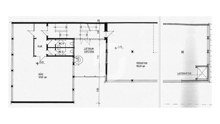
Am etablierten Gewerbestandort Stuttgart-Wangen stehen ca. 370 m² Bürofläche zur Verfügung, teilbar ab ca. 150 m². Die Flächen sind kurzfristig beziehbar und bieten eine moderne Ausstattung mit Parkettboden, außenliegendem Sonnenschutz, Pendelleuchten und Brüstungskanälen. Dank der zentralen Lage mit sehr guter Anbindung an...
Ausstattung
Brüstungskanäle, getr. Damen- u. Herren WCs, Teeküche, EDV-Verkabelung
Weitere Informationen
Sonstiges
Noch nicht das Richtige? Wir führen weitere Objekte im Großraum Stuttgart. Sprechen Sie mit unseren Beratern. Gemeinsam finden wir Ihr Wunschobjekt! Wir freuen uns auf Ihre Kontaktaufnahme!
Am 01. Mai 2014 ist die EnEV 2014 in Kraft getreten. Nach den §§ 16, 16 a EnEV ist der Eigentümer, Verkäufer...
Anbieter der Immobilie
Immoraum GmbH
Uhlandstraße 14, 70182 Stuttgart

Online-ID: 2l8es5s
Referenznummer: IRx2515/G1/E2/Eh1
Finde Angebote wie dieses
Hier geht es zu unserem Impressum, den Allgemeinen Geschäftsbedingungen, den Hinweisen zum Datenschutz und nutzungsbasierter Online-Werbung.