

Einfamilienhaus zum Kauf119000 €334 €/m²18 Zimmer • 356 m² • 626 m² Grundstück • frei ab sofort
119000 €
334 €/m²
18 Zimmer • 356 m² • 626 m² Grundstück • frei ab sofort
Einfamilienhaus, Pension, Mehrgenerationenhaus, vieles ist möglich
Merkmale
- frei ab sofort
- 626 m² Grundstück
- Einbauküche
- Keller
- Garage
- Garten
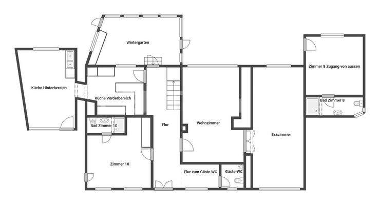
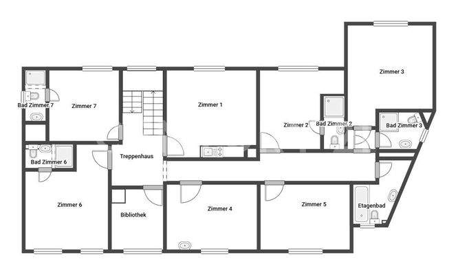
Grundrisse
Grundrisse
1 / 3
Realisiere Dein Projekt
Bausubstanz und Energie
Der Anbieter hat keine Informationen zum Energieverbrauch bereit gestellt.
- Baujahr1895
- HeizungsartZentralheizung
- EnergieträgerÖl
Preisdetails
Kaufpreis
119000 €
334,27 €/m²
Provision für Käufer
3.57% inkl. MwSt.
Die Käuferprovision beträgt 3,57 % des Kaufpreises inkl. 19% MwSt.
Die Käuferprovision beträgt 3,57 % des Kaufpreises inkl. 19% MwSt.
Weitere Preisinformationen
1 Garagenstellplatz
Geschätzte Gesamtkosten
131.578 €1
Kaufpreis
119.000 €
Kaufnebenkosten
12.578 €
2Notarkosten (1,5%)
1.785 €
Grunderwerbsteuer (5%)
5.950 €
Provision für Käufer (3,57%)
4.248 €
Grundbucheintrag (0,5%)
595 €
1Der angezeigte Wert ist eine automatisch berechnete Schätzung von immowelt.
2Bei den Angaben handelt es sich um ortsübliche Werte. Individuelle Kosten können abweichen.
Lage

Lütz (56290)
Der Anbieter hat die genaue Adresse nicht freigegeben
Weitere Informationen
Weitere Services
Lust auf eine Besichtigung?
Eine Frage zur Immobilie?
Über den Anbieter
CENTURY 21 Ahrtal ImmobilienMaklerbüro
Hauptstraße 102, 53518 Adenau
Partnerschaft

Herr Jürgen NehringDein Kontakt
Online-ID: 2l8gr5q
Referenznummer: C21_JUNE_43993


CENTURY 21 Ahrtal Immobilien
Bewertung: 4,1 von 5 Sternen
Wie zufrieden bist du mit dieser Seite (nicht mit der Immobilie selbst)?

