

Mehrfamilienhaus zum Kauf449000 €2.428 €/m²6 Zimmer • 185 m² • 1.201 m² Grundstück
449000 €
2.428 €/m²
6 Zimmer • 185 m² • 1.201 m² Grundstück
Kapitalanlage: Solides Haus mit zwei Mietwohnungen in ruhiger Ortsrandlage in Dagebüll
Merkmale
- 1.201 m² Grundstück
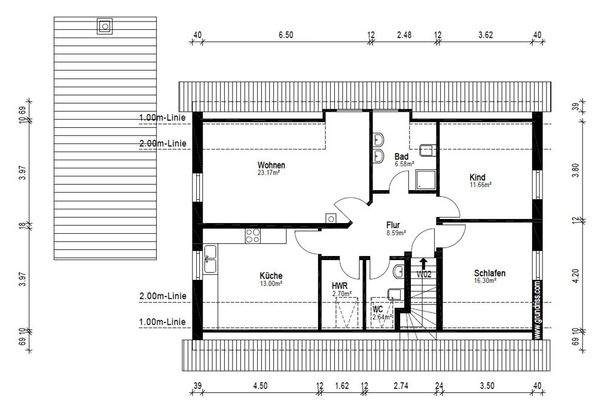
Grundrisse
Grundrisse
1 / 2
Realisiere Dein Projekt
Bausubstanz und Energie
Energieausweis
F
- Baujahr1999
- Zustand der ImmobilieGepflegt
- HeizungsartZentralheizung
- EnergieträgerÖl
Preisdetails
Kaufpreis
449000 €
2.427,55 €/m²
Provision für Käufer
3,57 % inkl. gesetzl. MwSt.
Geschätzte Gesamtkosten
503.194 €1
Kaufpreis
449.000 €
Kaufnebenkosten
54.194 €
2Notarkosten (1,5%)
6.735 €
Grunderwerbsteuer (6,5%)
29.185 €
Provision für Käufer (3,57%)
16.029 €
Grundbucheintrag (0,5%)
2.245 €
1Der angezeigte Wert ist eine automatisch berechnete Schätzung von immowelt.
2Bei den Angaben handelt es sich um ortsübliche Werte. Individuelle Kosten können abweichen.
Lage

Dagebüll (25899)
Der Anbieter hat die genaue Adresse nicht freigegeben
Weitere Informationen
Weitere Services
Lust auf eine Besichtigung?
Eine Frage zur Immobilie?
Über den Anbieter
Alte Schulstr. 4, 25899 Niebüll
Partnerschaft

Herr Bahne RichardsenDein Kontakt
Online-ID: 2l8js56
Referenznummer: 100-150-0


Richardsen Immobilien-Vermietungen GmbH & Co KG
Wie zufrieden bist du mit dieser Seite (nicht mit der Immobilie selbst)?

