
Werne Gruppe
WMH GmbH Lenz
077 ···
Nr. anzeigenPreise & Kosten
Provision für Käufer
3,57 % inkl. MwSt
Lage
Waldshut-Tiengen ist eine Doppelstadt im Südwesten Baden-Württembergs unmittelbar an der Schweizer Grenze.
Sie ist die Kreisstadt und zugleich größte Stadt des Landkreises Waldshut und ein Mittelzentrum für die umliegenden Gemeinden. Waldshut-Tiengen liegt am Hochrhein, der in diesem Abschnitt durch das Kraftwerk...
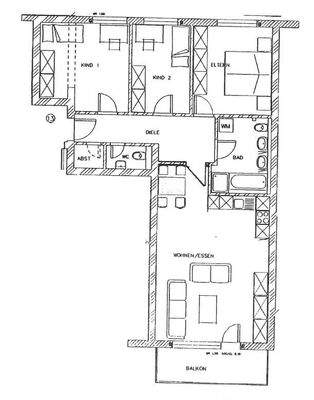
Die Wohnung
Bezug
nach Vereinbarung
Wohnanlage
Energie & Heizung
Warum sehe ich diese Anzeige? – Du siehst diese Anzeige basierend auf Ihrer Navigation auf unserer Website und den Suchkriterien, die du verwendet hast.
Energieausweistyp
Verbrauchsausweis
Gebäudetyp
Wohngebäude
Wesentliche Energieträger
Gas
Gültigkeit
29.09.2023 bis 29.09.2033
Effizienzklasse
E
Endenergieverbrauch
141,00 kWh/(m²·a) - Warmwasser enthalten
Weitere Energiedaten
Energieträger
Gas
Heizungsart
Zentralheizung
Details
Objektbeschreibung
Zentral & stilvoll: Renovierte 4,5-Zimmer-Wohnung in Tiengen zum Kauf!
Diese attraktive 4,5-Zimmer-Wohnung im Herzen von Tiengen bietet eine hervorragende Gelegenheit - sowohl für Eigennutzer als auch für Kapitalanleger.
Die ca. 96qm große Wohnung überzeugt durch eine durchdachte Raumaufteilung, eine angenehme...
Ausstattung
-Hochwertige Einbauküche mit modernen Elektrogeräten
-Badezimmer mit bodengleicher, breiter Dusche, Badewanne und Unterputz-Armaturen
-Dusch-WC für zusätzlichen Komfort
-Elektrische Funkrollläden
-Elektrische Markise auf dem Balkon
-Hochwertige Fliegengitter an Fenstern und Balkontür
-Neue Wohnungstüren und...
Preisinformation
2 Tiefgaragenstellplätze
Weitere Informationen
Sonstiges
Die Immobilie wird über eine zentrale Gasheizung beheizt, die für eine effiziente und gleichmäßige Wärmeverteilung sorgt. Zudem ist eine Enthärtungsanlage vorhanden, die zur Verbesserung der Wasserqualität beiträgt.
Stichworte
Tiefgarage vorhanden, Anzahl der Schlafzimmer: 3, Anzahl der Badezimmer: 1...
Dokumente
Anbieter der Immobilie
Online-ID: 2l8lx5x
Referenznummer: Zentral & stilvoll: Renovierte 4,5-Zimmer-Wohnung
Finde Angebote wie dieses
Hier geht es zu unserem Impressum, den Allgemeinen Geschäftsbedingungen, den Hinweisen zum Datenschutz und nutzungsbasierter Online-Werbung.