

HaseWohnbau GmbH & Co. KG
Herr Michel Trienen
054 ···
Nr. anzeigenPreise & Kosten
Warum sehe ich diese Anzeige? – Du siehst diese Anzeige basierend auf Ihrer Navigation auf unserer Website und den Suchkriterien, die du verwendet hast.
Die Wohnung
Wohnungslage
1. Geschoss
Bezug
Sommer 2026
Wohnanlage
Energie & Heizung
Warum sehe ich diese Anzeige? – Du siehst diese Anzeige basierend auf Ihrer Navigation auf unserer Website und den Suchkriterien, die du verwendet hast.
Weitere Energiedaten
Energieträger
Pellets
Heizungsart
Fußbodenheizung, Zentralheizung
Details
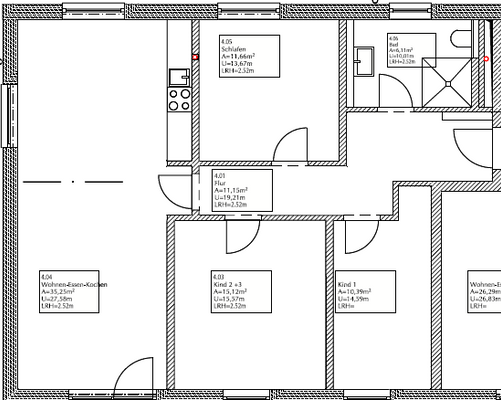
Objektbeschreibung
Dieses Neubauprojekt umfasst ein Mehrfamilienhaus mit 8 hellen und modern geschnittenen Wohnungen im Herzen von Ankum, in der Aslager Straße. Dank der zentralen Lage sind Geschäfte des täglichen Bedarfs und das Ortszentrum bequem zu Fuß erreichbar.
Sollten Sie an der Wohnung Interesse haben Melden Sie sich bei...
Weitere Informationen
Wohnung
Die 90,83 m² große Wohnung mit Terrasse befindet sich im Obergeschoss. Sie haben über eine Treppe, sowie über den Fahrstuhl die Möglichkeit zu Ihrer neuen Wohnung zu gelangen.
Kellerraum
Weiterhin gehört zu der Wohnung ein abschließbarer Kellerraum, welcher mit einem Aufzug und einer Treppe erreichbar...
Dokumente
Anbieter der Immobilie
HaseWohnbau GmbH & Co. KG
Bersenbrücker Straße 6, 49577 Ankum

Online-ID: 2l8qa5c
Finde Angebote wie dieses
Hier geht es zu unserem Impressum, den Allgemeinen Geschäftsbedingungen, den Hinweisen zum Datenschutz und nutzungsbasierter Online-Werbung.