
Antaris Immobilien GmbH
Frau Yvonne Lehmann
+49 ···
Nr. anzeigenPreise & Kosten
Provision für Mieter
provisionsfrei
Warum sehe ich diese Anzeige? – Du siehst diese Anzeige basierend auf Ihrer Navigation auf unserer Website und den Suchkriterien, die du verwendet hast.
Lage
Das Bürogebäude befindet sich im Gewerbegebiet Kühnhausen im Norden von Erfurt, in verkehrsgünstiger Lage. Über die nahegelegene Bundesstraße B4 ist die Erfurter Innenstadt in ca. 10 Minuten erreichbar, ebenso wie der Autobahnanschluss A71 und der Flughafen Erfurt-Weimar. Die Umgebung ist geprägt von gewerblich genutzten...
Büro-/Praxisfläche
Kategorie
Bürofläche
Baujahr
1996
Energie & Heizung
Warum sehe ich diese Anzeige? – Du siehst diese Anzeige basierend auf Ihrer Navigation auf unserer Website und den Suchkriterien, die du verwendet hast.
Wärme
Strom
Energieausweistyp
Verbrauchsausweis
Gebäudetyp
Nicht-Wohngebäude
Baujahr laut Energieausweis
1996
Wesentliche Energieträger
Erdgas leicht
Gültigkeit
22.09.2025 bis 22.09.2035
Endenergieverbrauch (Wärme)
23,40 kWh/(m²·a)
Endenergieverbrauch (Strom)
12,10 kWh/(m²·a)
Details
Objektbeschreibung
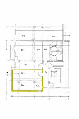
Zur Vermietung steht eine Büroeinheit mit einer Fläche von ca. 75?m², gelegen im 2. Obergeschoss. Sie befindet sich in einem gepflegten Bürogebäude. Die Einheit ist bequem über das Treppenhaus erreichbar. Die Sanitäranlagen befinden sich auf dem Flur und stehen zur gemeinschaftlichen Nutzung zur Verfügung. Großzügige...
Weitere Informationen
Stichworte
Sonstiges: Getrennte Damen- und Herren-WCs
Anbieter der Immobilie
Online-ID: 2l8tz5u
Referenznummer: P508/G1/Eh2
Finde Angebote wie dieses
Hier geht es zu unserem Impressum, den Allgemeinen Geschäftsbedingungen, den Hinweisen zum Datenschutz und nutzungsbasierter Online-Werbung.