
S-Immobiliengesellschaft Holstein mbH &Co.KG
Herr Frank Hill
045 ···
Nr. anzeigenPreise & Kosten
Provision für Käufer
3,57 % inkl. MwSt.
Lage
Die Immobilie befindet sich in der malerischen Ortschaft Niendorf, einem charmanten Fischerdorf an der Lübecker Bucht. Der feinsandige Ostseestrand liegt nur etwa 600 m entfernt und lädt zu ausgedehnten Spaziergängen und Erholung ein. Niendorf besticht durch seinen traditionellen Hafen und das authentische Flair, das es zu...
Das Haus
Kategorie
Einfamilienhaus
Baujahr
1986
Bezug
nach Absprache
Energie & Heizung
Warum sehe ich diese Anzeige? – Du siehst diese Anzeige basierend auf Ihrer Navigation auf unserer Website und den Suchkriterien, die du verwendet hast.
Energieausweistyp
Verbrauchsausweis
Gebäudetyp
Wohngebäude
Baujahr laut Energieausweis
1986
Wesentliche Energieträger
Gas
Gültigkeit
15.07.2025 bis 14.07.2035
Effizienzklasse
C
Endenergieverbrauch
99,10 kWh/(m²·a)
Weitere Energiedaten
Haustyp
Massivhaus
Energieträger
Gas
Details
Objektbeschreibung
Kurzbeschreibung
Top-Lage nahe Naturschutzgebiet
Objekt
Exklusives Einfamilienhaus in Top-Lage nahe Naturschutzgebiet und Ostseestrand
Dieses imposante Einfamilienhaus in absoluter Bestlage am Naturschutzgebiet lässt die Herzen von Kennern höherschlagen. Erbaut im Jahr 1986 und 1999 aufwendig komplett umgebaut...
Ausstattung
Baujahr: 1986, Umbau und Modernisierung : 1999
Naturnahe Lage am Naturschutzgebiet
Über 70 m² Wohn-/Essbereich mit Kachelofen und direktem Zugang zum Wintergarten
Süd-West-Terrasse, Gartenhaus, Gerätehaus
Hochwertige Einbauküche (EBK) mit modernsten Geräten
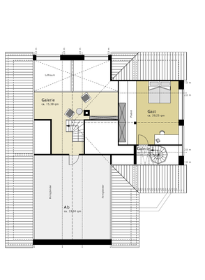
Galerieartiges Dachgeschoss mit ca. 35 m²...
Weitere Informationen
Stichworte
Carport vorhanden, Anzahl der Badezimmer: 2, Anzahl der separaten WCs: 1, Anzahl Terrassen: 1, Bundesland: Schleswig-Holstein, modernisiert: 1999, modernisiert
Anbieter der Immobilie
S-Immobiliengesellschaft Holstein mbH &Co.KG
Hagenstr. 19, 23843 Bad Oldesloe
Online-ID: 2l8u85x
Referenznummer: 25-9067
Finde Angebote wie dieses
Hier geht es zu unserem Impressum, den Allgemeinen Geschäftsbedingungen, den Hinweisen zum Datenschutz und nutzungsbasierter Online-Werbung.