
HausWohnungMeer Immobilie
Frau Desiree Strak
004 ···
Nr. anzeigenPreise & Kosten
Provision für Käufer
3,57 % inkl. MwSt.
Lage
Die angebotene Immobilie befindet sich in dem charmanten Ortsteil Stollhamm der Gemeinde Butjadimgen. Stollhamm besticht durch seine ruhige, ländliche Atmosphäre und die Nähe zur Natur, was es zu einem idealen Ort für Familien, Ruhesuchende und Naturliebhaber macht.
Die Umgebung von Stollhamm ist geprägt von...
Das Haus
Kategorie
Villa
Baujahr
1900
Bezug
Nach Absprache
Energie & Heizung
Warum sehe ich diese Anzeige? – Du siehst diese Anzeige basierend auf Ihrer Navigation auf unserer Website und den Suchkriterien, die du verwendet hast.
Energieausweistyp
Bedarfsausweis
Gebäudetyp
Wohngebäude
Baujahr laut Energieausweis
1900
Wesentliche Energieträger
GAS
Gültigkeit
bis 03.10.2034
Effizienzklasse
H
Endenergiebedarf
364,50 kWh/(m²·a)
Weitere Energiedaten
Energieträger
Gas
Heizungsart
offener Kamin, Zentralheizung
Details
Objektbeschreibung
Wenn Sie diese Immobilie zum träumen bringt, dann soll es Ihre sein!
Von der Straße fast schon unscheinbar, wird Sie diese beeindruckende Villa auf eine spannende Reise mitnehmen und in Ihren Bann ziehen. Öffnen Sie die Augen für die kleinen Details - denn hier werden Geschichte und Moderne stilvoll miteinander...
Ausstattung
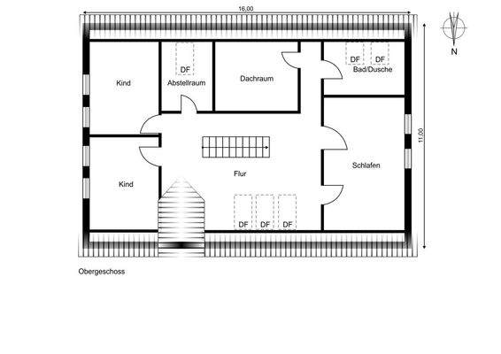
Durch eine zentral gelegene Treppe erreichen Sie das Obergeschoss mit einer großzügigen Wohngalerie. Hier kann die Familie zusammenkommen und spielen, lesen oder Ihren Hobbys nachkommen. Große Dachfenster erfüllen diesen Raum mit einer natürlichen Belichtung.
Neben einem großzügigen Badezimmer mit Badewanne, Dusche und...
Weitere Informationen
Sonstiges
Zum Kaufpreis hinzu kommen die Grunderwerbssteuer von 5%, die Notarkosten von etwa 2% und die Käuferprovision von 3,57% inkl. MWST. Die neue gesetzliche Regelung ab dem 23.12.2020 nach BGB §656c findet hier Anwendung.
Vereinbaren Sie gerne einen unverbindlichen Besichtigungstermin.
Dieses Exposé...
Anbieter der Immobilie
Online-ID: 2l8v85z
Referenznummer: 3228
Finde Angebote wie dieses
Hier geht es zu unserem Impressum, den Allgemeinen Geschäftsbedingungen, den Hinweisen zum Datenschutz und nutzungsbasierter Online-Werbung.