Version: 8.24.0Navigation überspringen
870 €
87 m² Bürofläche
Immowelt logo

Bürofläche zur Miete • provisionsfrei
870 €
87 m² Bürofläche

Ihre Wünsche, Ihr Raum - individuell renovierte Gewerbeeinheit in Radeberg

Gestalten Sie Ihre neue Gewerbefläche nach Ihren Vorstellungen!

Entdecken Sie diese vielseitige Gewerbeeinheit im Erdgeschoss eines denkmalgeschützten Gebäudes in der Oberstraße 1 in Radeberg - eine attraktive Adresse mit besonderem Charme.
Auf rund 87 Quadratmetern bietet die Einheit ideale Voraussetzungen für Büro-, Praxis- oder Dienstleistungsnutzungen und kann ganz nach Ihren Wünschen gestaltet werden.

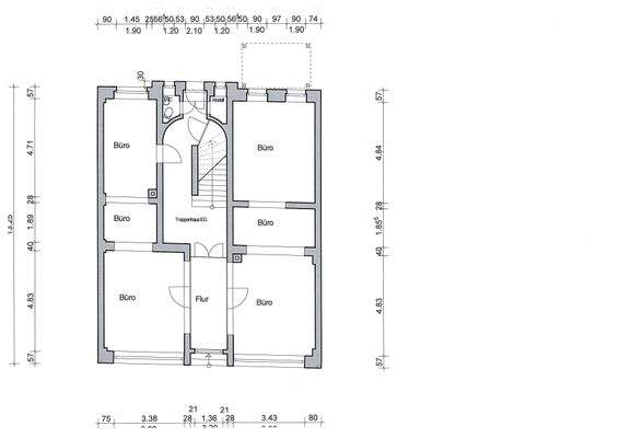
Der anliegende Grundriss zeigt zwei großzügige Räume, die bei Bedarf flexibel aufgeteilt oder angepasst werden können. Ob offenes Konzept oder einzelne Arbeitsbereiche - die Aufteilung richtet sich nach Ihren individuellen Anforderungen. Ein WC, ein Kellerabteil sowie ein gemeinsam genutzter Außenbereich mit Hofcharakter runden das Raumangebot ab.

Besonders hervorzuheben: Die Einheit wird vor Ihrem Einzug vollständig renoviert - und zwar nach Ihren Vorstellungen. Bodenbeläge, Wandgestaltung, Raumaufteilung oder technische Ausstattung können in Abstimmung angepasst werden, sodass Ihre neuen Geschäftsräume optimal zu Ihrem Unternehmenskonzept passen.

Ein praktischer Kellerraum und ein Abstellbereich bieten zusätzlichen Stauraum, während der begrünte Gartenbereich zu kleinen Pausen im Freien einlädt. Die Immobilie befindet sich in einem gepflegten, bereits sanierten Gebäude, das historische Substanz mit moderner Nutzbarkeit verbindet.

Die Fläche steht ab dem 01.01.2026 zur Verfügung - sichern Sie sich jetzt diese besondere Gelegenheit, Ihr Unternehmen in einem repräsentativen Umfeld zu etablieren.

Für weitere Informationen oder zur Abstimmung Ihrer individuellen Gestaltungswünsche stehen wir Ihnen gern zur Verfügung.
Bitte beachten Sie, dass auf die angegebene Kaltmiete sowie die Nebenkosten zusätzlich die gesetzliche Mehrwertsteuer erhoben wird.

Merkmale

  • frei ab sofort
  • Keller
  • Gäste-WC
  • Garten
  • Bodenbelag: Fliesen
  • Denkmalschutz-Afa
Das gesamte Gebäude wurde bereits umfassend saniert, und auch die Gewerbeeinheit wird vor Ihrem Einzug renoviert. Dabei können individuelle Wünsche berücksichtigt werden, sodass Sie Ihre Räumlichkeiten nach Ihren Vorstellungen gestalten können.

Die Gewerbeeinheit überzeugt mit einer modernen und zugleich stilvollen Ausstattung, die sowohl repräsentativ als auch funktional ist. Der pflegeleichte Fliesenboden sorgt für eine angenehme, professionelle Atmosphäre und unterstreicht den hellen und freundlichen Gesamteindruck der Räume. Die beiden Haupträume lassen sich flexibel nutzen und bei Bedarf individuell unterteilen, sodass eine optimale Anpassung an Ihre Geschäftsanforderungen möglich ist.

Ein Gäste-WC sowie ein zusätzlicher Abstellraum bieten praktischen Komfort im Alltag. Für weiteren Stauraum steht ein Kellerabteil zur Verfügung. Der gemeinschaftlich nutzbare Außenbereich im Hinterhof sowie der angrenzende Garten schaffen zusätzlichen Mehrwert - sei es für kurze Pausen im Grünen oder als erweiterte Nutzungsmöglichkeit.

Grundrisse

Grundrisse
1 / 1

Realisiere Dein Projekt

Bausubstanz und Energie

Energieausweis

Ein Energieausweis ist für diesen Gebäudetyp nicht notwendig.
  • Zustand der Immobilierenoviert / saniert
  • HeizungsartZentralheizung
  • EnergieträgerGas
Immowelt logo

Mietkosten

Warmmiete
1.070 €
Nettomiete
870 €
Nebenkosten
80 €
Heizkosten
120 €
Provision für Mieter
provisionsfrei
Kaution
1.740 €

Lage

address-icon
Oberstraße 1Radeberg (01454)
Lagebeschreibung für Immobilienanzeige: Miete, Radeberg

Diese Immobilie befindet sich in der charmanten Stadt Radeberg, bekannt für ihre idyllische Umgebung und hohe Lebensqualität. Die Lage bietet eine perfekte Mischung aus Ruhe und Nähe zu urbanen Annehmlichkeiten.

- Zentral gelegen, nur wenige Gehminuten vom historischen Stadtzentrum Radebergs entfernt
- Ausgezeichnete Anbindung an öffentliche Verkehrsmittel, einschließlich Bus- und Bahnverbindungen nach Dresden
- In der Nähe befinden sich mehrere Supermärkte, Boutiquen und Restaurants, die für den täglichen Bedarf sorgen
- Schnelle Autobahnanbindung für Pendler, die eine einfache Erreichbarkeit in andere Städte gewährleistet

Radeberg ist nicht nur für seine traditionsreiche Brauerei bekannt, sondern auch für seine gut erhaltene historische Altstadt und die freundliche Nachbarschaft. Diese Immobilie bietet die ideale Gelegenheit, in einer der begehrtesten Lagen der Region Ihr Gewerbe zu betreiben.

Weitere Informationen

Sonstiges Ist diese Immobilie nicht das, was Sie suchen? Alle unsere Immobilienangebote finden Sie auch tagesaktuell auf unserer Homepage www.is-radeberg.de.
Viele weitere Angebote stehen zur Verfügung. Eine individuelle und professionelle Kauf-/ Mietabwicklung sichern wir Ihnen zu.
Die Objektdaten beruhen auf den Angaben des Eigentümers. Daher übernehmen wir für die Vollständigkeit und Richtigkeit keine Haftung. Zwischenverkauf/-vermietung und Irrtümer sind vorbehalten. Stichworte Bundesland: Sachsen

Weitere Services

Lust auf eine Besichtigung?
Eine Frage zur Immobilie?
Nachricht hinzufügen
Mit der Nutzung der oben angegebenen Telefonnummer oder durch Klicken auf „Kontaktieren“ akzeptierst Du die Allgemeinen Nutzungsbedingungen, denen Du jederzeit widersprechen kannst. Weitere Informationen zum Datenschutz

Über den Anbieter

Hauptstraße 33 - 37, 01454 Radeberg
partner badge
Partnerschaft
Herr Christian KorchDein Kontakt
Online-ID: 2l8y95m
Referenznummer: 4350161
Immobilien Service Radeberg GmbH
Bewertung: 4,6 von 5 Sternen
Nachricht hinzufügen
Mit der Nutzung der oben angegebenen Telefonnummer oder durch Klicken auf „Kontaktieren“ akzeptierst Du die Allgemeinen Nutzungsbedingungen, denen Du jederzeit widersprechen kannst. Weitere Informationen zum Datenschutz
Wie zufrieden bist du mit dieser Seite (nicht mit der Immobilie selbst)?