

Heinz Kirsky Immobilien
Herr Heinz Kirsky
021 ···
Nr. anzeigenPreise & Kosten
Kaution
3 Monatsnettomieten
Provision für Mieter
1 Monatsnettomiete
Warum sehe ich diese Anzeige? – Du siehst diese Anzeige basierend auf Ihrer Navigation auf unserer Website und den Suchkriterien, die du verwendet hast.
Lage
Das Objekt befindet sich an der Mankhauser Straße in Solingen-Ohligs, einer beliebten und gut erreichbaren Lage im Westen der Stadt.
Der Stadtteil Ohligs zeichnet sich durch eine lebendige Mischung aus Wohn- und Geschäftshäusern, vielfältige Einkaufsmöglichkeiten und eine hervorragende Verkehrsanbindung aus.
Die...
Büro-/Praxisfläche
Baujahr
2
Energie & Heizung
Warum sehe ich diese Anzeige? – Du siehst diese Anzeige basierend auf Ihrer Navigation auf unserer Website und den Suchkriterien, die du verwendet hast.
Weitere Energiedaten
Energieträger
Gas
Details
Objektbeschreibung
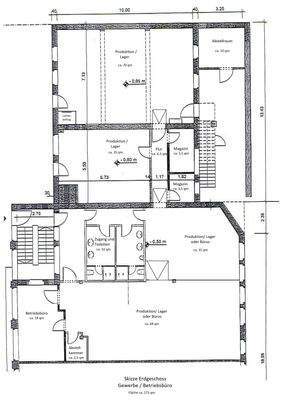
Die hier angebotenen Gewerbeflächen befinden sich in ruhiger Hoflage und erstrecken sich über das Erdgeschoss sowie das 1. Obergeschoss eines Anbaus. Insgesamt stehen ca. 396 m² Nutzfläche zur Verfügung – davon entfallen 273 m² auf das Erdgeschoss und 123 m² auf das Obergeschoss.
Die Flächen sind ab dem 01.01.2026...
Ausstattung
Ausstattung
•Zentrale Gasheizungsanlage
•Vinylböden im I. Obergeschoss und im Betriebsbüro im Erdgeschoss (neuwertig)
•Klimageräte in den größeren Räumen im Obergeschoss
•Kabelkanäle im I. OG vorhanden
•Mehrere Außentüren zum Hof, davon eine mit größerer Breite
•Druckluftleitungen und Starkstromanschlüsse in...
Weitere Informationen
Sonstiges
Für das Obergeschoss ist ein separater Stromzähler vorhanden, der bei Bedarf wieder aktiviert werden kann – ideal für eine getrennte Nutzung oder bei höherem Strombedarf.
Eine Teilvermietung der Flächen ist grundsätzlich möglich:
•Erdgeschoss: ca. 273 m² – Nettomiete 1.640,- € zzgl. MwSt., Nebenkosten...
Anbieter der Immobilie

Heinz Kirsky Immobilien

Online-ID: 2l94d5z
Finde Angebote wie dieses
Hier geht es zu unserem Impressum, den Allgemeinen Geschäftsbedingungen, den Hinweisen zum Datenschutz und nutzungsbasierter Online-Werbung.