Version: 8.24.0Navigation überspringen
hallenpool GmbH & Co. KG
Preis auf Anfrage
8.000 m² Grundstück

Gewerbegrundstück zum Kauf • provisionsfrei
8.000 m² Grundstück

Gewerbegrundstück, ca. 8.000 m², in 56729 Ettringen PROVISIONSFREI zu verkaufen

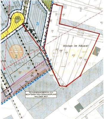
Zum Verkauf steht ein vielseitig nutzbares Gewerbegrundstück in Ettringen. Das Areal erstreckt sich über insgesamt ca. 8.000 m² und ist aus mehreren Parzellen zusammengelegt. Der Verkauf erfolgt ausschließlich als Gesamteinheit - ein Einzelverkauf ist nicht vorgesehen.

Die Andienung erfolgt komfortabel über das voll erschlossene, direkt angrenzende Gewerbegebiet (Weyerwiese). Die dafür notwendige Zuwegung wurde bereits erfolgreich erstellt und abgeschlossen.

Eine künftige Bebauung orientiert sich ebenfalls am vorhandenen Bebauungsplan des benachbarten Gewerbegebietes, bzw. nach Umgebungsbebauung, was auch gestalterische Freiräume bei der Planung eröffnet.
Die Alleinlage in einem ruhigen Umfeld ermöglicht konzentriertes Arbeiten, moderne Gewerbenutzung oder auch kombinierte Wohn- und Arbeitskonzepte für anspruchsvolle Bauherren. Benachbarte, bereits ansässige Unternehmen beeinflussen das Grundstück nicht nachteilig.

Merkmale

  • Bezug: sofort
  • 8.000 m² Grundstück
  • Kein Keller
  • voll erschlossen

Grundrisse

Grundrisse
1 / 1

Realisiere Dein Projekt

Bausubstanz und Energie

Der Anbieter hat keine Informationen zum Energieverbrauch bereit gestellt.
  • Zustand der ImmobilieGepflegt

Preisdetails

Provision für Käufer
provisionsfrei

Lage

address-icon
Ettringen (56729)
Der Anbieter hat die genaue Adresse nicht freigegeben
Das attraktive Gewerbegrundstück befindet sich in Ortsrandlage der ca. 3.000 Einwohnergemeinde Ettringen im Landkreis Mayen-Koblenz in Rheinland-Pfalz.

Der Ort ist ländlich geprägt, aber durch seine zentrale Lage im nördlichen Rheinland-Pfalz dennoch gut angebunden.
. Mayen: ca. 4 km (ca. 5 Minuten mit dem Auto)
. A61 (Anschluss Mendig oder Wehr): ca. 15 Autominuten
. Koblenz: ca. 35 km (ca. 35 Minuten Fahrzeit)
. Bonn: ca. 60 km
. Köln: ca. 85 km

Die Region profitiert von einer guten Verkehrsanbindung über die Bundesstraßen B258 und B262 sowie die Nähe zur Autobahn A61. Auch der Bahnhof Mayen-Ost ist in etwa 10-15 Minuten erreichbar und bietet Anschluss an den Regionalverkehr.

Infrastruktur wie Einkaufsmöglichkeiten, Handwerksbetriebe, Gastronomie, medizinische Versorgung sowie (Grund-) schulen sind im Ort bzw. im nahen Umfeld (Mayen, Mendig) vorhanden. Der Standort kombiniert damit Ruhe und naturnahe Lage mit funktionaler Anbindung.

Weitere Informationen

Sonstiges Haftungsausschluss:

Alle in diesem Angebot enthaltenen Angaben, Abmessungen und Preisangaben beruhen auf Angaben des Vermieters/Verkäufers (oder eines Dritten). hallenpool übernimmt hierfür keine Haftung. Die Haftung von hallenpool wird auf Vorsatz und grobe Fahrlässigkeit beschränkt.

Sonstiges:

Uns sind weitere Flächen in der Umgebung bekannt, sprechen Sie uns an, wir finden die richtige Fläche für Sie! Weitere Angebote auch unter https://www.hallenpool.com/angebote/

Für die Bearbeitung der Anfrage sind folgende Angaben erforderlich:

- Vollständiger Firmenname
- Geschäftsanschrift
- Name einer verantwortlichen Kontaktperson
- Geplantes Nutzungsvorhaben des Objekts

Bei Anfragen von Firmen in Gründung oder zur privaten Nutzung sind stattdessen folgende Daten anzugeben:

- Vollständiger Name der anfragenden Person
- Anschrift
- Kontaktdaten
- Geplantes Nutzungsvorhaben des Objekts

Diese Angaben sind notwendig, um die Anfrage eindeutig zuzuordnen und zuverlässig bearbeiten zu können.

Alle angegebenen Preise sind Nettopreise und verstehen sich ggf. zzgl. der gesetzlich geltenden USt. Stichworte Nutzfläche: 8.000,00 m², Gesamtfläche: 8.000,00 m²

Weitere Services

Lust auf eine Besichtigung?
Eine Frage zur Immobilie?
Nachricht hinzufügen
Mit der Nutzung der oben angegebenen Telefonnummer oder durch Klicken auf „Kontaktieren“ akzeptierst Du die Allgemeinen Nutzungsbedingungen, denen Du jederzeit widersprechen kannst. Weitere Informationen zum Datenschutz

Über den Anbieter

Marktstr.10, 56564 Neuwied
partner badge
6 Jahre Partnerschaft
Herr Norbert KieselDein Kontakt
Online-ID: 2l9555j
Referenznummer: NK241
hallenpool GmbH & Co. KG
hallenpool GmbH & Co. KG
Nachricht hinzufügen
Mit der Nutzung der oben angegebenen Telefonnummer oder durch Klicken auf „Kontaktieren“ akzeptierst Du die Allgemeinen Nutzungsbedingungen, denen Du jederzeit widersprechen kannst. Weitere Informationen zum Datenschutz
Wie zufrieden bist du mit dieser Seite (nicht mit der Immobilie selbst)?