
Nobilis Wohnbau GmbH
094 ···
Nr. anzeigenPreise & Kosten
Provision für Käufer
provisionsfrei
Lage
Die Eigentumswohnungen liegen im Zentrum von Burglengenfeld , so dass alle täglichen Besorgungen zu Fuß erledigt werden können . In unmittelbarer Umgebung sind Kindergärten und Kitas vorhanden . Ebenfalls sind die Schulen in Burglengenfeld zeitnah zu erreichen .
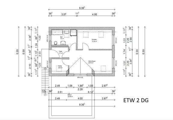
Die Wohnung
Wohnungslage
Dachgeschoss
Bezug
31.12.2026
Wohnanlage
Energie & Heizung
Warum sehe ich diese Anzeige? – Du siehst diese Anzeige basierend auf Ihrer Navigation auf unserer Website und den Suchkriterien, die du verwendet hast.
Weitere Energiedaten
Energieträger
Elektro
Heizungsart
Fußbodenheizung, Luft-/Wasser-Wärmepumpe, Zentralheizung
Details
Objektbeschreibung
Im Zentrum von Burglengenfeld entstehen 2 ETW . Die ETW im DG verfügt über 3 Zimmer auf 66 m² Wohnfläche . Der Zugang zur Wohnung erfolgt nicht über ein gemeinsames Treppenhaus , sondern separat durch eine Treppe im Aussenbereich . Zudem verfügt die Wohnung über eine große Dachterrasse ( ca. 32 m² ) .Der Zukauf einer Garage...
Ausstattung
Die Eigentumswohnungen werden in der Energieeffizienz KfW 40 erstellt . Sie werden mit einer Wärmepumpe sowie einer Photovoltaikanlage ( 5 kW ) ohne Speicher ausgestattet . Als Bodenbeläge werden Fliesen und Parkett eingebracht . Die ETW DG verfügt über ein Tageslichtbad und beinhaltet eine Badewanne sowie eine Dusche und...
Dokumente
Anbieter der Immobilie
Online-ID: 2l95g5b
Finde Angebote wie dieses
Hier geht es zu unserem Impressum, den Allgemeinen Geschäftsbedingungen, den Hinweisen zum Datenschutz und nutzungsbasierter Online-Werbung.