

Spittel Bau GmbH
Frau Lea Schuhmacher
074 ···
Nr. anzeigenPreise & Kosten
zzgl. Nebenkosten
Provision für Mieter
provisionsfrei
Warum sehe ich diese Anzeige? – Du siehst diese Anzeige basierend auf Ihrer Navigation auf unserer Website und den Suchkriterien, die du verwendet hast.
Lage
Rund 21.000 Einwohner wohnen in der Schramberger Talstadt bzw. im Stadtteil Tennenbronn und auf der umliegenden Hochebene in den Stadtteilen Sulgen, Waldmössingen, Heiligenbronn und Schönbronn. Ursprünglich Uhren- und Industriestadt, hat sich Schramberg heute zu einer modernen Stadt entwickelt, die Kultur, Bildung, Sport...
Die Industriefläche
Kategorie
Lagerhalle
Baujahr
2023
Bezug
sofort
Energie & Heizung
Warum sehe ich diese Anzeige? – Du siehst diese Anzeige basierend auf Ihrer Navigation auf unserer Website und den Suchkriterien, die du verwendet hast.
Weitere Energiedaten
Heizungsart
Zentralheizung
Details
Objektbeschreibung
Wie funktioniert Selfstorage?
Selfstorage, die moderne Art des Einlagerns, wird an mittlerweile vielen Standorten in Deutschland angeboten. Für eine Menge Selfstorage-Nutzer bieten die Lagerräume schon heute viel praktischen Nutzen. Doch es gibt noch immer genügend Menschen, die noch nie von Selfstorage gehört haben oder...
Weitere Informationen
Sonstiges
keine Ernergieausweispflicht
Stichworte
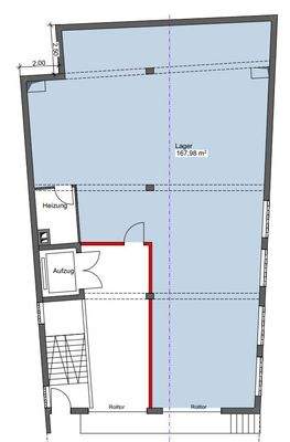
Lagerfläche: 170,00 m², Nutzfläche: 170,00 m², Gesamtfläche: 170,00 m²
Anbieter der Immobilie

Online-ID: 2l96e5z
Referenznummer: 3032
Finde Angebote wie dieses
Hier geht es zu unserem Impressum, den Allgemeinen Geschäftsbedingungen, den Hinweisen zum Datenschutz und nutzungsbasierter Online-Werbung.