

Aengevelt Immobilien GmbH & Co KG
Frau Adina Schmidt
+49 ···
Nr. anzeigenPreise & Kosten
Provision für Mieter
provisionsfrei
Warum sehe ich diese Anzeige? – Du siehst diese Anzeige basierend auf Ihrer Navigation auf unserer Website und den Suchkriterien, die du verwendet hast.
Lage
Die Mierendorff-Insel in Charlottenburg-Wilmersdorf hat mit 15.000 Einwohnern den Charakter einer eigenen kleinen Kommune - die zudem zu fast einem Viertel mit Gartenanlagen bepflanzt ist. Als Standort für ein Projekt, das städtisches Leben und Arbeiten so neu definiert wie AERA, ist sie daher perfekt: ein Standort mit hoher...
Büro-/Praxisfläche
Kategorie
Bürofläche
Baujahr
2024
Bezug
Q1 2024
Energie & Heizung
Warum sehe ich diese Anzeige? – Du siehst diese Anzeige basierend auf Ihrer Navigation auf unserer Website und den Suchkriterien, die du verwendet hast.
Weitere Energiedaten
Energieträger
Fernwärme
Details
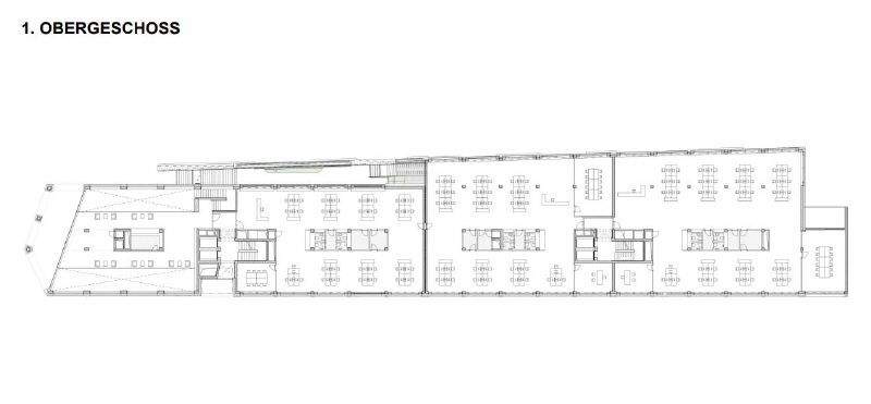
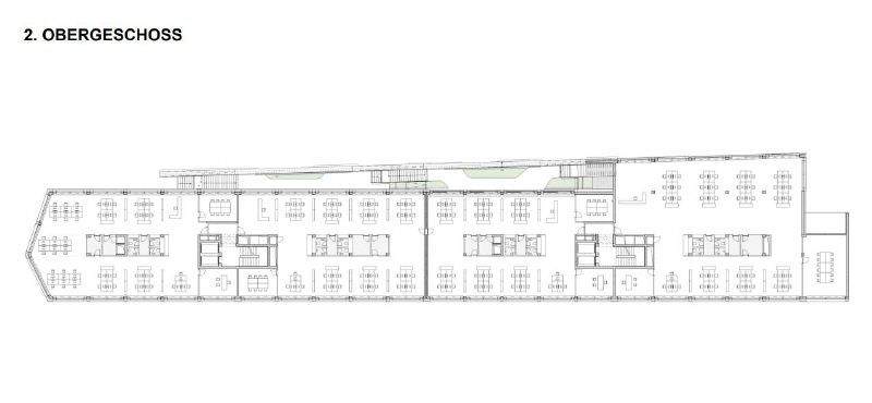
Objektbeschreibung
Bei der Planung und Realisierung des nachhaltigen Bürokomplexes bestand die Aufgabe darin, Raumstrukturen zu entwickeln, die innovativ und doch identitätsstiftend sind, indem sie auf die Menschen eingehen, für die sie gemacht sind. Und darin, die Natur mit einzubeziehen, anstatt sie zu verdrängen. Auf dem kaskadenartig...
Ausstattung
Bei der Ausstattung des Neubaus stehen die Flexibilität und der Nutzen im Vordergrund. Offene Installationen, Deckensegel, hohe Räume und breite Fenster sorgen für ein optimales Arbeitsklima. Die Grundrisse können von 400 m² bis zu 2000 m² flexibel gestaltet werden. Die Konferenzbereiche an der Südspitze sind durchgehend...
Weitere Informationen
Provisionshinweis
provisionspflichtig
Der guten Ordnung halber verweisen wir auf unsere Provisionsbedingungen:
Im Anmietungsfall beträgt die Maklerprovision bei Mietverträgen mit bis zu 5 Jahren Laufzeit 3,0 Netto-Monatsmieten, bei einer Vertragsdauer von über 5 Jahren 4,0 Netto-Monatsmieten, jeweils zzgl...
Anbieter der Immobilie
Aengevelt Immobilien GmbH & Co KG
Kennedydamm 55/Ross-Strasse, 40476 Düsseldorf

Online-ID: 2l98t5r
Referenznummer: 8263917
Finde Angebote wie dieses
Hier geht es zu unserem Impressum, den Allgemeinen Geschäftsbedingungen, den Hinweisen zum Datenschutz und nutzungsbasierter Online-Werbung.