
Krams Immobilien GmbH
Frau Melanie Verkamp
004 ···
Nr. anzeigenPreise & Kosten
Warum sehe ich diese Anzeige? – Du siehst diese Anzeige basierend auf Ihrer Navigation auf unserer Website und den Suchkriterien, die du verwendet hast.
Lage
Reutlingen, die Heimat von etwa 120.000 Einwohnern, vereint ländlichen Charme mit pulsierendem Stadtleben. Das Stuttgarter Tor bietet eine ideale Ausgangslage. Zahlreiche, attraktive Ziele sind bequem, zu Fuß erreichbar, sei es im täglichen Berufsleben, in der Freizeit oder für die Erholung.
Dank hervorragender...
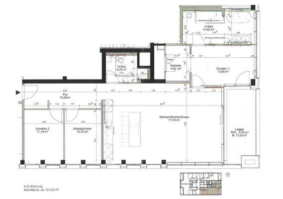
Die Wohnung
Wohnungslage
15. Geschoss
Bezug
sofort
Wohnanlage
Energie & Heizung
Warum sehe ich diese Anzeige? – Du siehst diese Anzeige basierend auf Ihrer Navigation auf unserer Website und den Suchkriterien, die du verwendet hast.
Energieausweistyp
Bedarfsausweis
Gebäudetyp
Wohngebäude
Baujahr laut Energieausweis
2019
Wesentliche Energieträger
FERN
Gültigkeit
bis 27.08.2029
Effizienzklasse
B
Endenergiebedarf
66,00 kWh/(m²·a)
Weitere Energiedaten
Energieträger
Fernwärme
Heizungsart
Fußbodenheizung, Zentralheizung
Details
Objektbeschreibung
Willkommen in Deinem neuen Zuhause im Stuttgarter Tor - einer exklusiven 4-Zimmer-Wohnung, die urbanes Leben mit einem außergewöhnlichen Panorama verbindet. Hier erwartet Dich ein Lebensgefühl der Extraklasse: zentral gelegen, mit absoluter Privatsphäre und einem Ausblick, der jeden Tag besonders macht.
Im 15. Stock...
Ausstattung
- Großformatige Fliesenböden in Beton-Optik
- Raumhohe Fensterfronten mit Wärmeschutzverglasung
- Elektrische Jalousien
- Fußbodenheizung
- Automatische Be- und Entlüftung
- Zusätzliche Bodentanks mit Steckdosen und Mediendose
- Klimaanlage im Wohnbereich und Schlafzimmer
- Loggia mit Glasbrüstung
-...
Preisinformation
2 Tiefgaragenstellplätze, Miete je: 110,00 EUR
Weitere Informationen
Stichworte
Anzahl der Badezimmer: 2, 16 Etagen
Anbieter der Immobilie
Krams Immobilien GmbH
Kaiserpassage 9, 72764 Reutlingen
Online-ID: 2l9bg52
Referenznummer: 8018
Finde Angebote wie dieses
Hier geht es zu unserem Impressum, den Allgemeinen Geschäftsbedingungen, den Hinweisen zum Datenschutz und nutzungsbasierter Online-Werbung.