
Koenen-Bau Immobilien GmbH
Herr Mirko Mischkowski
042 ···
Nr. anzeigenDieses Angebot ist Teil des Neubauprojekts
Willkommen im Neubaugebiet Wacholderweg - ebenerdige Wohnkonzepte I anspruchsvolle Einfamilien- und Doppelhäuser I moderne Eigentumswohnungen
Preise & Kosten
Provision für Käufer
provisionsfrei
Lage
Kurze Wege - die Autobahnauffahrt A27 ist in wenigen Minuten erreichbar; der Bahnhof in ca. 5 Minuten mit dem Fahrrad. Buslinien fahren in Richtung Bremen und Verden.
Das Besondere ist aber nicht nur die ideale Lage - die bewährte Infrastruktur spricht für sich: alle denkbaren Einkaufsmöglichkeiten, vorhandene Ärzte...
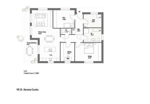
Das Haus
Baujahr
2025
Das Neubauprojekt
Energie & Heizung
Warum sehe ich diese Anzeige? – Du siehst diese Anzeige basierend auf Ihrer Navigation auf unserer Website und den Suchkriterien, die du verwendet hast.
Weitere Energiedaten
Haustyp
KfW 55
Heizungsart
Fußbodenheizung, Luft-/Wasser-Wärmepumpe
Details
Objektbeschreibung
Willkommen im Neubaugebiet Wacholderweg. Nachdem die Erschließungsarbeiten mittlerweile abgeschlossen worden sind und der Baubeginn der ersten Objekte vor kurzem erfolgt ist, freuen wir uns, Ihnen unser neu konzipiertes Baugebiet vorzustellen – ein Projekt, das Wohnwünsche erfüllen soll und sowohl Familien – die mit dem...
Weitere Informationen
Sonstiges
Die Objekte werden nach dem Gebäudeenergiegesetz (GEG) 2020 erstellt. Das hier angebotene Neubauprojekt befindet sich derzeit noch nicht im Bau und es liegt insofern auch noch kein Energieausweis vor. Spätestens im Zuge von Besichtigungsterminen kann ein gültiger Energieausweis vorgelegt werden.
Haben wir...
Anbieter der Immobilie
Koenen-Bau Immobilien GmbH
Universitätsallee 5, 28359 Bremen
Online-ID: 2l9dq5e
Finde Angebote wie dieses
Hier geht es zu unserem Impressum, den Allgemeinen Geschäftsbedingungen, den Hinweisen zum Datenschutz und nutzungsbasierter Online-Werbung.