
AH Nordsee Immobilien GmbH
Herr Dieter Kirchhoff
004 ···
Nr. anzeigenPreise & Kosten
Provision für Käufer
3,57 % inkl. gesetzl. MwSt. bezogen auf den Kaufpreis inkl. MwSt.
Lage
Ruhe pur in verkehrsfreier Lage bietet der Standort dieser exklusiven Immobilie im schönen Niebüll. Die Lage in einem gewachsenen Wohngebiet besticht mit überwiegender Einfamilienhausbebauung auf idyllischen Grundstücken. Hier lässt es sich gut leben!
Als "Tor nach Sylt" ist Niebüll bekannt, doch die Stadt mit ihrer...
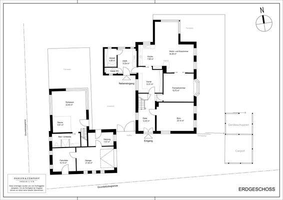
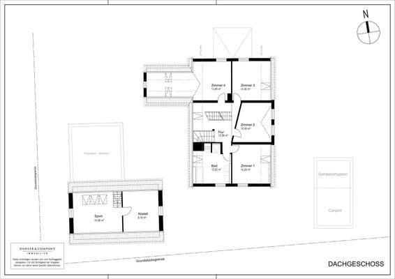
Das Haus
Kategorie
Einfamilienhaus
Baujahr
1926
Energie & Heizung
Warum sehe ich diese Anzeige? – Du siehst diese Anzeige basierend auf Ihrer Navigation auf unserer Website und den Suchkriterien, die du verwendet hast.
Weitere Energiedaten
Energieträger
Gas
Heizungsart
offener Kamin, Zentralheizung
Details
Objektbeschreibung
_charmante Architektur der Bauzeit 1926
_massiv mit zweischaligen Mauerwerk errichtetes Gebäude
_Rotklinkerfassade mit markantem Giebel
_aufwendige Komplettsanierung inkl. Dach in 2005
_Innenausbau mit hochwertigen Baustoffen
_Neubau Nebengebäude 2011
_Sauna-, Wellness- und Fitnessbereich im...
Ausstattung
_moderne, auf Wohlbefinden ausgerichtete Wohnwelt
_vollständig für gehobene Ansprüche modernisiert
_ausschließlich hochwertige Materialien
_Platz in Hülle und Fülle auf drei Ebenen
_stilvolle Bodenbeläge, u.a. Terrazzo , antike Fliesen und helle Eiche
_offener und lichtdurchfluteter Wohn-, Ess- und...
Preisinformation
1 Carportplatz
3 Stellplätze
1 Garagenstellplatz
Weitere Informationen
Sonstiges
Ein Energieausweis ist beauftragt.
Stichworte
Nutzfläche: 96,00 m², Anzahl der Schlafzimmer: 4, Anzahl der Badezimmer: 2, Anzahl der separaten WCs: 1, Anzahl Terrassen: 2
Anbieter der Immobilie
AH Nordsee Immobilien GmbH
Dorfstr. 27, 25826 Sankt Peter-Ording
Online-ID: 2l9ef59
Referenznummer: DC-SPO-1330
Finde Angebote wie dieses
Hier geht es zu unserem Impressum, den Allgemeinen Geschäftsbedingungen, den Hinweisen zum Datenschutz und nutzungsbasierter Online-Werbung.