
EHL Immobilien GmbH
Frau Andrea PÖCHHACKER; MSc
+43 ···
Nr. anzeigenPreise & Kosten
Provision für Käufer
Bitte beachte, das Angebot kann bei Vertragsabschluss die Zahlung einer Provision beinhalten. Weitere Informationen erhältst Du vom Anbieter.
Die Wohnung
Wohnungslage
2. Geschoss
Bezug
sofort
Wohnanlage
Energie & Heizung
Warum sehe ich diese Anzeige? – Du siehst diese Anzeige basierend auf Ihrer Navigation auf unserer Website und den Suchkriterien, die du verwendet hast.
Heizwärmebedarf (HWB)
42,50 kWh/(m²·a)
Gesamtenergieeffizienz (fGEE)
0,75
Weitere Energiedaten
Heizungsart
Fußbodenheizung, Luft-/Wasser-Wärmepumpe
Details
Objektbeschreibung
Attraktive Anlageimmobilien in Brunn am Gebirge - Lichtensteinstraße
Entdecken Sie ein Investmentprojekt, das modernes Design, hohe Bauqualität und naturnahe Ruhe vereint. In der Lichtensteinstraße, am Rand der idyllischen Stadt Brunn am Gebirge, erwartet Sie eine exklusive Wohnanlage, die Anlegern hervorragende...
Weitere Informationen
Stichworte
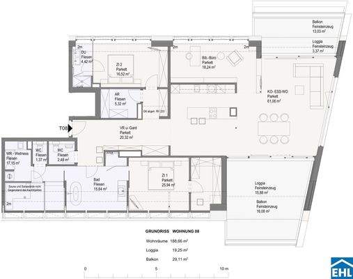
Tiefgarage vorhanden, Nord-West-Balkon/Terrasse, Fahrradraum, Anzahl der Badezimmer: 2, Anzahl der separaten WCs: 2, Anzahl Balkone: 2, Anzahl Loggias: 2, Balkon-Terrassen-Fläche: 48,36 m², Bundesland: Niederösterreich, 3 Etagen, Wohnungsnr.: 08
Wellness: Wellnessbereich
Dokumente
Anbieter der Immobilie
EHL Immobilien GmbH
Prinz-Eugen-Straße 8-10, 1040 WIEN
Online-ID: 2l9h35g
Referenznummer: OBGC202409161245501545c62a7a0b3
Finde Angebote wie dieses
Günstige Immobilienfinanzierung einfach online berechnen
Persönliches Angebot berechnenWarum sehe ich diese Werbung? – Du siehst diese Werbung basierend auf Deiner Navigation auf unserer Website und der von Dir verwendeten Suchkriterien.
Diese Werbung wird bezahlt von durchblicker
Werbung melden
Hier geht es zu unserem Impressum, den Allgemeinen Geschäftsbedingungen, den Hinweisen zum Datenschutz und nutzungsbasierter Online-Werbung.