
Immobilienbüro Hochmann
Herr Berndt Hochmann
(07 ···
Nr. anzeigenPreise & Kosten
Provision für Käufer
provisionsfrei
Lage
Eckgrundstück endend in einer Sackgasse in bevorzugtem und gewachsenem Wohngebiet von Riedlingen.
Kindergarten und Schulen, sowie Bäcker, REWE-Markt ....... alles in wenigen Gehminuten zu Fuß erreichbar.
Das Haus
Baujahr
1976
Bezug
sofort beziehbar
Energie & Heizung
Warum sehe ich diese Anzeige? – Du siehst diese Anzeige basierend auf Ihrer Navigation auf unserer Website und den Suchkriterien, die du verwendet hast.
Energieausweistyp
Bedarfsausweis
Gebäudetyp
Wohngebäude
Baujahr laut Energieausweis
2001
Gültigkeit
bis 17.07.2035
Effizienzklasse
E
Endenergiebedarf
148,60 kWh/(m²·a)
Weitere Energiedaten
Energieträger
Öl
Heizungsart
Zentralheizung
Details
Objektbeschreibung
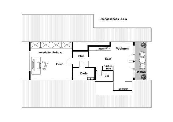
Zum Verkauf steht hier ein 1-Familienhaus mit großzügiger Einliegerwohnung in der Grüninger Siedlung von Riedlingen.
Das Haus bietet Aufgrund der großzügigen Gesamt-Wohnfläche und des bereits ausgebauten Dachstudios (ELW) ein sehr großes Potenzial - für Selbständige, Großfamilie - oder gar Mehrgenartionenhaus. Hier...
Ausstattung
* Öl-ZH
* 15.000 Liter Tank
* Kachelofen im WZ/Esszimmer
* Neue Einbauküche in der Wohn-/Essküche mit Speis
* Praktische Durchreiche von der Küche ins Esszimmer
* DG: ältere EBK-Zeile und kl. Bad mit WC
* 6-7 Zimmer + ausbaubare Bühne
* Teppichböden und teilw. Vinylböden neu
* Aufwendige...
Preisinformation
1 Garagenstellplatz
Weitere Informationen
Sonstiges
Baujahr: 1976
Heizungsart: Zentralheizung
Befeuerung/Energieträger: Öl
Energieeffizienzklasse: E
Energiekennwert: 148,6 kWh/(m²*a)
Energieausweistyp: Bedarfsausweis
Energieausweis liegt vor und wird bei der Besichtigung ausgehändigt.
Stichworte
Garage vorhanden, Stellplatz...
Anbieter der Immobilie

Immobilienbüro Hochmann
Online-ID: 2l9k45j
Referenznummer: 4656
Finde Angebote wie dieses
Hier geht es zu unserem Impressum, den Allgemeinen Geschäftsbedingungen, den Hinweisen zum Datenschutz und nutzungsbasierter Online-Werbung.