
Thomas Girkinger Immobilien GmbH
Herr Thomas Girkinger akad.IM
+43 ···
Nr. anzeigenPreise & Kosten
Provision für Käufer
3% des Kaufpreises zzgl. 20% USt.
Die Wohnung
Wohnungslage
2. Geschoss
Wohnanlage
Energie & Heizung
Warum sehe ich diese Anzeige? – Du siehst diese Anzeige basierend auf Ihrer Navigation auf unserer Website und den Suchkriterien, die du verwendet hast.
Heizwärmebedarf (HWB)
121,00 kWh/(m²·a)
Gesamtenergieeffizienz (fGEE)
1,95
Weitere Energiedaten
Energieträger
Fernwärme, Gas
Details
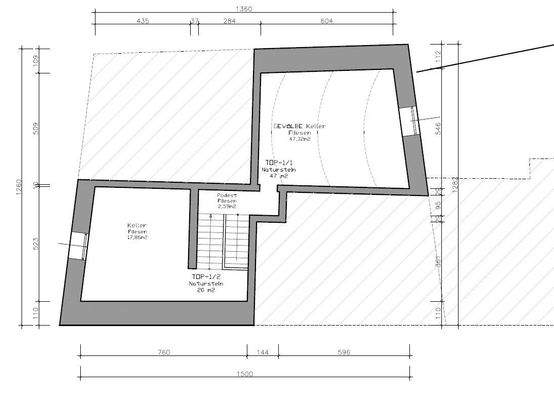
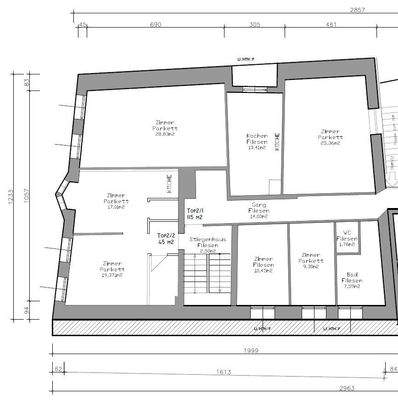
Objektbeschreibung
Großzügige 5-Zimmer-Wohnung in Toplage von Linz-Ebelsberg
Diese großzügig geschnittene Wohnung im 2. Obergeschoss eines Wohn- und Gewerbeobjekts bietet auf ca. 160m² viel Potenzial zur individuellen Gestaltung. Mit fünf Zimmern eignet sie sich ideal für große Haushalte, Wohngemeinschaften oder als Kapitalanlage mit...
Weitere Informationen
Stichworte
Nutzfläche: 160,00 m², Anzahl der Badezimmer: 1, Anzahl der separaten WCs: 1, Bundesland: Oberösterreich
Anbieter der Immobilie
Thomas Girkinger Immobilien GmbH
Kroatengasse 32, 4020 LINZ
Online-ID: 2l9lc5y
Referenznummer: OBGC202510021013072422bfb4600ec
Finde Angebote wie dieses
Günstige Immobilienfinanzierung einfach online berechnen
Persönliches Angebot berechnenWarum sehe ich diese Werbung? – Du siehst diese Werbung basierend auf Deiner Navigation auf unserer Website und der von Dir verwendeten Suchkriterien.
Diese Werbung wird bezahlt von durchblicker
Werbung melden
Hier geht es zu unserem Impressum, den Allgemeinen Geschäftsbedingungen, den Hinweisen zum Datenschutz und nutzungsbasierter Online-Werbung.