
VR-Bank Alb-Blau-Donau eG
Frau Tanja Söll
+49 ···
Nr. anzeigenPreise & Kosten
Provision für Käufer
provisionsfrei
Lage
Die Wohnanlage befindet sich im Büchelesweg 6 in Ehingen. Mehrere Einkaufsmöglichkeiten zur Nahversorgung befinden sich im Einkaufszentrum am Wenzelstein, welches leicht zu Fuß oder mit dem Fahrrad erreichbar ist. Das Stadtzentrum von Ehingen ist per Busanbindung sehr gut erreichbar.
Ebenso fußläufig in kurzer Distanz...
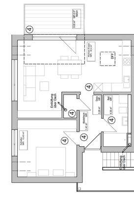
Die Wohnung
Wohnungslage
Dachgeschoss
Derzeitige Nutzung
frei
Wohnanlage
Energie & Heizung
Warum sehe ich diese Anzeige? – Du siehst diese Anzeige basierend auf Ihrer Navigation auf unserer Website und den Suchkriterien, die du verwendet hast.
Weitere Energiedaten
Haustyp
Holzhaus
Heizungsart
Fußbodenheizung, Luft-/Wasser-Wärmepumpe
Details
Objektbeschreibung
Das Projekt besteht aus einem 3-geschossigen Wohngebäude mit 5 Einheiten.
Im Haus befinden sich Wohnungen mit 2 und 3 Zimmern. Die Wohnflächen bewegen sich zwischen ca. 61 und ca. 78 m².
Jede Wohnung hat einen eigenen, in der Wohnung liegenden Abstellraum. Des Weiteren besitzt jede Wohnung einen separaten, zur Wohnung...
Ausstattung
Für jede Wohnung des Gebäudes steht ein Carport- oder ein Außenstellplatz zum Erwerb zur Verfügung.
Die Wohnungen sind nach Westen hin ausgerichtet und besitzen weitläufige Ess- und Wohnbereiche. Über die großzügigen Fensterflächen ergeben sich helle und lichtdurchflutete Wohnräume.
Die Wohnanlage besticht durch die...
Preisinformation
1 Carportplatz, Kaufpreis: 17.500,00 EUR
Weitere Informationen
Sonstiges
Das Wohnhaus wird in innovativer Holzrahmenbauweise mit höchsten Anforderungen an die Energieeffizienz errichtet. Durch den besonderen Wandaufbau erreichen wir sehr hohe Dämmwerte. Über die hochwärmegedämmte Gebäudehülle, mit der sogar die strengen Anforderungen der KfW Bank für das Effizienzhaus 40 übertroffen...
Anbieter der Immobilie
VR-Bank Alb-Blau-Donau eG
Bahnhofstr. 15, 89584 Ehingen (Donau)
Online-ID: 2l9ln5h
Referenznummer: 94 (1/94)
Finde Angebote wie dieses
Hier geht es zu unserem Impressum, den Allgemeinen Geschäftsbedingungen, den Hinweisen zum Datenschutz und nutzungsbasierter Online-Werbung.