
A1 Immobilien GmbH
Ronald Wenderoth
+49 ···
Nr. anzeigenPreise & Kosten
Provision für Käufer
provisionsfrei
Lage
Nietleben ist ein im Westen gelegener Stadtteil von Halle (Saale), mit einer Einwohnerzahl von ca. 2.600 Einwohnern. In Objektnähe befindet sich der Stadtwald "Heide" mit dem Freibad im angelegten Heidesee. Das Bad ist in wenigen Gehminuten erreichbar. Im Ort selbst befinden sich Ärzte, Kitas, eine Schule, Restaurants...
Das Haus
Kategorie
Doppelhaushälfte
Baujahr
2025
Bezug
1. Quartal 2027
Energie & Heizung
Warum sehe ich diese Anzeige? – Du siehst diese Anzeige basierend auf Ihrer Navigation auf unserer Website und den Suchkriterien, die du verwendet hast.
Weitere Energiedaten
Haustyp
Massivhaus
Details
Objektbeschreibung
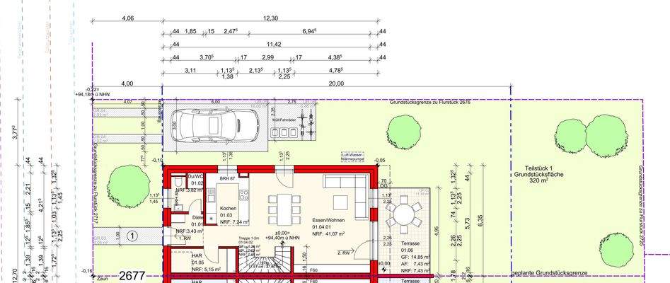
Die Immobilie wird in unmittelbarer Nähe zum Heidesee im Bereich des Baugebietes "Bebauungsplan Nr. 73 Bennstedter Straße/Granau der Stadt Halle/Saale" im Stadtteil Nietleben errichtet und erfüllt die Ansprüche an modernes Wohnen.
Dieses Angebot bezieht sich auf die Doppelhaushälfte 1 auf dem Grundstück Nr. 4 (siehe...
Ausstattung
- Neubaustandard nach dem Gebäudeenergiegesetz (GEG)
- Mauerwerk aus dem natürlichen Baustoff Kalksandstein mit Wärmedämmverbundsystem (WDVS)
- Kunststofffenster in Weiß mit Dreischeiben-Isolierverglasung
- mechanisch betriebene ALU-Rollläden in Grau an allen Fensterelementen
- Kunststoff-Hauseingangstür in Weiß...
Weitere Informationen
Sonstiges
Da die vorliegenden Grundrisse Vorabzüge sind, möchten wir darauf hinweisen, dass alle Maßangaben Circa-Werte sind und sich die Maße nach Vorliegen der Ausführungszeichnungen noch geringfügig ändern können.
Das Einfamilienhaus ist ab dem 1. Quartal 2027 verfügbar.
Der Verkauf erfolgt...
Anbieter der Immobilie
Online-ID: 2l9n65s
Referenznummer: 300779#8X03y
Finde Angebote wie dieses
Hier geht es zu unserem Impressum, den Allgemeinen Geschäftsbedingungen, den Hinweisen zum Datenschutz und nutzungsbasierter Online-Werbung.