Wohnzone Schlössl GmbH

Herr Robert Kranzinger

Büro- und Praxisräume in Ried im Innkreis

€ 1.842
Nettokaltmiete
k.A.
Bürofläche
k.A.
Teilbare Fläche
4
Zimmer

Der Anbieter dieses Objekts hat gegenüber der AVIV Germany GmbH als Betreiber dieses Online-Marktplatzes erklärt, nicht als Unternehmer im Sinne des § 1 KSchG zu handeln. Die im Verbraucherschutzrecht der Union verankerten Verbraucherrechte (insbesondere Informationspflichten und Rücktritts- bzw. Widerrufsrechte) finden auf den Vertrag zwischen dem Anbieter des Objekts und Ihnen (dem Interessenten) keine Anwendung.

Gewerblicher Anbieter

Der Anbieter dieses Objekts hat gegenüber der AVIV Germany GmbH als Betreiber dieses Online-Marktplatzes erklärt, als Unternehmer im Sinne des § 1 KSchG zu handeln.

AdresseStraße nicht freigegeben
4910 Ried im Innkreis 
Auf Karte ansehen

Preise & Kosten

Nettokaltmiete € 1.842 Betriebskosten € 297

Provision für Mieter

Bitte beachte, das Angebot kann bei Vertragsabschluss die Zahlung einer Provision beinhalten. Weitere Informationen erhältst Du vom Anbieter.

Lage

Büro-/Praxisfläche

Kategorie

Bürofläche

Geschoss

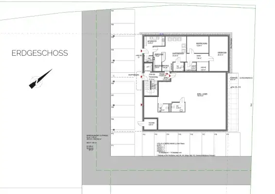
Erdgeschoss

  • Erstbezug, Neubau

Energie & Heizung

Weitere Energiedaten

Heizungsart

Fußbodenheizung

Details

Objektbeschreibung

Sie sind auf der Suche nach einer hochwertigen Büro- oder Praxisfläche in Ried im Innkreis? Dann haben wir genau das Richtige für Sie! Diese neu errichtete Immobilie im Erdgeschoss bietet Ihnen auf insgesamt 118,83m² genügend Platz für Ihre geschäftlichen Aktivitäten. Mit vier geräumigen Zimmern bietet sie Ihnen vielfältige...

Mehr anzeigen

Preisinformation

Nettokaltmiete: 1.842,00 EUR

Weitere Informationen

Stichworte
Carport vorhanden, Stellplatz vorhanden, Wohnfläche: 118,83 m², Anzahl der separaten WCs: 1, Bundesland: Oberösterreich, Wohnungsnr.: Top 2

Anbieter der Immobilie

Partner

Wohnzone Schlössl GmbH

Herzog Odilo-Straße 4, 5310 MONDSEE

user

Herr Robert Kranzinger

Dein Ansprechpartner

Anbieter-Website Anbieter-Profil Anbieter-Impressum

Online-ID: 2l9r55f

Referenznummer: OBGC20250121141556173510d91a6cb

Finde Angebote wie dieses

imageimageimage

Hier geht es zu unserem Impressum, den Allgemeinen Geschäftsbedingungen, den Hinweisen zum Datenschutz und nutzungsbasierter Online-Werbung.