

Sternad & Paulitsch Immobilien
Herr Ing. Heribert Alexander Sternad
004 ···
Nr. anzeigenPreise & Kosten
Provision für Käufer
Provisionsfrei vom Bauträger
Lage
Hubertusstraße, Velden am Wörthersee
Strahlend türkises Wasser und Sonnenschein soweit das Auge reicht - "The Roof" ist nur einen kurzen Spaziergang davon entfernt! Doch lassen Sie sich nicht nur von den bekannten Hot Spots wie der schicken Flaniermeile am Seecorso, den eleganten Boutiquen, gemütlichen Cafés und noblen...
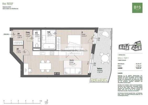
Die Wohnung
Wohnanlage
Energie & Heizung
Warum sehe ich diese Anzeige? – Du siehst diese Anzeige basierend auf Ihrer Navigation auf unserer Website und den Suchkriterien, die du verwendet hast.
Weitere Energiedaten
Energieträger
Fernwärme
Heizungsart
Fußbodenheizung
Details
Objektbeschreibung
Nachhaltigkeit im Herzen von Velden, hier erwartet dich ein grünes Projekt mit 25 hochwertigen Wohnungen, die dir ein Maximum an Komfort und Individualität bieten. Bereit, die Wohnwelt auf den Kopf zu stellen?
"The Roof" setzt auf intelligente Raumplanung und verwandelt Außenräume in erweiterte Wohnzimmer. Hier wird...
Ausstattung
Modernität
Wohnen auf einem neuen Niveau, mit allem was dazugehört. Großzügig gestaltete Wohnräume bilden eine Einheit, die zum Leben einladen. Hier erleben Sie zeitgemäßes Design, das Ihre Sinne verwöhnt und Ihren Lebensstil auf eine ganz neue Ebene hebt.
Außenraum
"The Roof" hat nicht nur ein Herz für Luxus...
Weitere Informationen
Sonstiges
Dieses Projekt wird in Kooperation mit Bednarzek & Schnitzer Immobilien vermarktet.
Jegliche Information und rechtlichen Grundlagen stammen von unserem Kooperationspartner.
Stichworte
Fahrradraum, Anzahl der Schlafzimmer: 1, Anzahl der Badezimmer: 1, Anzahl der separaten WCs: 1, Anzahl...
Anbieter der Immobilie
Sternad & Paulitsch Immobilien
Karfreitstraße 24, 9020 KLAGENFURT

Online-ID: 2l9s95y
Referenznummer: SP-260_4
Finde Angebote wie dieses
Günstige Immobilienfinanzierung einfach online berechnen
Persönliches Angebot berechnenWarum sehe ich diese Werbung? – Du siehst diese Werbung basierend auf Deiner Navigation auf unserer Website und der von Dir verwendeten Suchkriterien.
Diese Werbung wird bezahlt von durchblicker
Werbung melden
Hier geht es zu unserem Impressum, den Allgemeinen Geschäftsbedingungen, den Hinweisen zum Datenschutz und nutzungsbasierter Online-Werbung.