

Schwabenhaus Info-Center Merzig
Herr Horst Alexander
+49 ···
Nr. anzeigenPreise & Kosten
Provision für Käufer
provisionsfrei
Lage
Das Objekt befindet sich in einem ruhigen und bevorzugten Wohngebiet . Hier genießen Sie eine angenehme und entspannte Wohnatmosphäre. Die Umgebung zeichnet sich durch ihre ruhige Lage und die Nähe zur Natur aus.
Das Grundstück bietet eine sehr gute Verkehrsanbindung, sodass Sie schnell und bequem Ihre Ziele erreichen...
Das Haus
Kategorie
Einfamilienhaus
Energie & Heizung
Warum sehe ich diese Anzeige? – Du siehst diese Anzeige basierend auf Ihrer Navigation auf unserer Website und den Suchkriterien, die du verwendet hast.
Weitere Energiedaten
Heizungsart
Fußbodenheizung
Details
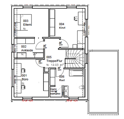
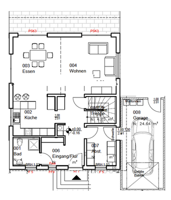
Objektbeschreibung
Ein Rückzugsort für die Seele"
Inmitten des hektischen Alltags finden Sie hier einen Rückzugsort für die Seele. Dieses Einfamilienhaus bietet Ihnen den Luxus, den Sie verdienen, und die Ruhe, die Sie brauchen. Es ist ein Ort, an dem Sie entspannen, sich regenerieren und Ihre schönsten Momente genießen können. Die liebevoll...
Ausstattung
Jedes Schwabenhaus in der Ausbaustufe "Fast Vollendet" bietet Ihnen standardmäßig:
Modernste Wärmepumpentechnik für effizientes Heizen und Kühlen
Zentrale, kontrollierte Wohnraumbe- und Entlüftung mit Wärmerückgewinnung für ein gesundes Raumklima
3-Scheiben-Wärmeschutzglas für optimalen Energie- und...
Weitere Informationen
Sonstiges
Hier erwarten Sie unzählige Annehmlichkeiten. Ihre Suche nach dem perfekten Einfamilienhaus findet hier ihr Ende. Denn ein Schwabenhaus ist nicht bloß ein Haus, sondern ein Statement für Ihre Lebensqualität.
Nehmen Sie noch heute Kontakt mit uns auf, um diese einzigartige Gelegenheit wahrzunehmen.
Die...
Anbieter der Immobilie
Schwabenhaus Info-Center Merzig
Im Kieselgarten 19, 66663 Merzig

Online-ID: 2l9t35w
Referenznummer: SH-350966
Finde Angebote wie dieses
Hier geht es zu unserem Impressum, den Allgemeinen Geschäftsbedingungen, den Hinweisen zum Datenschutz und nutzungsbasierter Online-Werbung.