
ohne-makler.net - Immobilien selbst vermarkten
Privat vom Eigentümer
017 ···
Nr. anzeigenPreise & Kosten
Provision für Käufer
provisionsfrei
Lage
Das sehr gepflegte Anwesen liegt zentral und dennoch angenehm ruhig in einer verkehrsberuhigten 30er-Zone im beliebten Nürnberger Stadtteil Gibitzenhof. Die Nürnberger Innenstadt ist in wenigen Minuten bequem erreichbar - ideal für Stadtliebhaber mit dem Wunsch nach einem ruhigen Zuhause.
Die Anbindung an den öffentlichen...
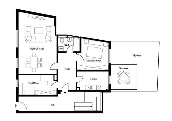
Die Wohnung
Wohnungslage
Erdgeschoss
Bezug
nach Absprache
Wohnanlage
Energie & Heizung
Warum sehe ich diese Anzeige? – Du siehst diese Anzeige basierend auf Ihrer Navigation auf unserer Website und den Suchkriterien, die du verwendet hast.
Energieausweistyp
Verbrauchsausweis
Gebäudetyp
Wohngebäude
Effizienzklasse
D
Endenergieverbrauch
118,00 kWh/(m²·a)
Weitere Energiedaten
Energieträger
Gas
Heizungsart
Zentralheizung
Details
Objektbeschreibung
Diese schöne 3-Zimmer-Wohnung befindet sich in einem gepflegten Mehrfamilienhaus, dessen Fassade und Treppenhaus 2024 frisch renoviert wurden. Der grüne Innenhof wurde revitalisiert, das Dach wurde im ersten Halbjahr 2025 neu gedämmt.
Das großzügige Wohnzimmer überzeugt mit viel Tageslicht und einer offenen Atmosphäre. Die...
Ausstattung
Terrasse, Garten, Keller, Vollbad, Einbauküche, Barrierefrei, Parkett
Preisinformation
1 Stellplatz, Kaufpreis: 15.000,00 EUR
Weitere Informationen
Sonstiges
Heizungsart: Zentralheizung
Energieträger: Gas
Makleranfragen nicht erwünscht. Nach § 7 UWG sind unaufgeforderte Kontaktaufnahmen durch Makler ohne ausdrückliche Einwilligung des Empfängers verboten!
ohne-makler (OM) ist weder Anbieter noch Vermittler der Immobilie. OM betreibt eine Plattform...
Anbieter der Immobilie
ohne-makler.net - Immobilien selbst vermarkten
Humboldtstr. 25 A, 21509 Glinde
Online-ID: 2l9t75j
Referenznummer: 391783
Finde Angebote wie dieses
Hier geht es zu unserem Impressum, den Allgemeinen Geschäftsbedingungen, den Hinweisen zum Datenschutz und nutzungsbasierter Online-Werbung.