
Bauunternehmen Dirk Kage GmbH
Herr Gunnar Struckmeyer
+49 ···
Nr. anzeigenPreise & Kosten
Provision für Käufer
provisionsfrei
Lage
Die Stadt Quickborn im Kreis Pinneberg, Schleswig-Holstein, bietet nur knapp 20 km entfernt von Hamburg mit einer ausgezeichneten Anbindung und einer hervorragenden Infrastruktur einen grünen Lebensraum mit vielfältiger Natur. Die Hamburger Innenstadt lässt sich in nur 40 Minuten erreichen, was Quickborn als idealen Wohnort...
Das Haus
Kategorie
Doppelhaushälfte
Energie & Heizung
Warum sehe ich diese Anzeige? – Du siehst diese Anzeige basierend auf Ihrer Navigation auf unserer Website und den Suchkriterien, die du verwendet hast.
Weitere Energiedaten
Haustyp
Massivhaus
Heizungsart
Fußbodenheizung
Details
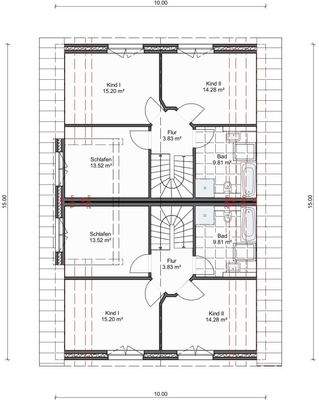
Objektbeschreibung
Bei dem Gebäude handelt es sich um einen Planungsvorschlag, da das Grundstück eine Vielzahl von Bebauungsmöglichkeiten bietet. Nutzen Sie die Chance Ihr Haus bereits in den Grundzügen der Planung mitzugestalten.
Viel Platz für das Familienleben bietet Ihnen diese geplante Doppelhaushälfte mit 7,50 x 10,00 m Außenmaß. Ca...
Ausstattung
Das Haus verfügt bereits standardmäßig über eine qualitativ sehr hochwertige Grundausstattung. Die unten aufgeführten Ausstattungsmerkmale zeigen nur einen kleinen Ausschnitt.
Rund ums Haus:
- Baugrunduntersuchung
- Baugerüst, Baustellen-WC, Bauschuttentsorgung
- Gartenpaket: Außensteckdose, Außenwasserhahn...
Weitere Informationen
Sonstiges
Im oben genannten Preis ist die geplante Doppelhaushälfte mit allen vorstehend aufgeführten Extras sowie dem Grundstücksteil von ca. 273 m² enthalten. In die Grundstücksgröße eingeschlossen sind der Wegeanteil von ca. 9 m².
Nicht enthalten sind: Die Ankaufkosten wie Grunderwerbsteuer (6,5 %), die Notar-...
Anbieter der Immobilie
Bauunternehmen Dirk Kage GmbH
Kieler Straße 33 b, 25551 Hohenlockstedt
Online-ID: 2l9wb5z
Referenznummer: GS1962
Finde Angebote wie dieses
Hier geht es zu unserem Impressum, den Allgemeinen Geschäftsbedingungen, den Hinweisen zum Datenschutz und nutzungsbasierter Online-Werbung.