
Müller Merkle Immobilien GmbH
Frau Stefanie Koch
Kontaktiere den Anbieter schriftlich, es ist keine Telefonnummer hinterlegt.
Dieses Angebot ist Teil des Neubauprojekts
FRIEDA'S
Preise & Kosten
Kaution
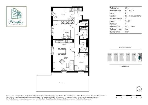
9447
Warum sehe ich diese Anzeige? – Du siehst diese Anzeige basierend auf Ihrer Navigation auf unserer Website und den Suchkriterien, die du verwendet hast.
Lage
ÖPNV, Nahversorgung und Schule - alles ist bequem und schnell zu erreichen. Nur 250 Meter entfernt liegt die Bushaltestelle, während S- und U-Bahn nach rund 500 Metern erreicht sind. Im Umkreis von ca. 750 Metern sorgen Lidl, Aldi, EDEKA und Netto für den Einkauf täglichen Bedarfs. Auch Parks, Spielplätze und Sportstätten...
Die Wohnung
Kategorie
Penthouse
Wohnungslage
5. Geschoss
Bezug
01.03.2026
Wohnanlage
Das Neubauprojekt
Energie & Heizung
Warum sehe ich diese Anzeige? – Du siehst diese Anzeige basierend auf Ihrer Navigation auf unserer Website und den Suchkriterien, die du verwendet hast.
Energieausweistyp
Bedarfsausweis
Gebäudetyp
Wohngebäude
Baujahr laut Energieausweis
2025
Wesentliche Energieträger
Fernwärme
Gültigkeit
01.06.2025 bis 01.06.2035
Effizienzklasse
B
Endenergiebedarf
55,20 kWh/(m²·a)
Weitere Energiedaten
Energieträger
Fernwärme
Details
Objektbeschreibung
Mit dem FRIEDAS Berlin entsteht auf einem Areal von ca. 24.366 m2 ein modernes Wohnquartier. Der gesamte Neubau-Komplex in der Friedenauer Höhe umfasst sechs Gebäude mit insgesamt 396 Wohnungen, die in drei Bauabschnitten fertiggestellt werden. Im ersten Bauabschnitt entstehen 132 Wohnungen mit einem bis vier Zimmern...
Ausstattung
Klares Design und modernste Ausstattung bieten Spielraum und individuelle Gestaltungsfreiheit der Räume. Klare Grundrisse und durchdachte Raumnutzungskonzepte sorgen neben dem offenen Schnitt der Wohnzimmer, den bodentiefen Fenstern, die viel Licht in die Zimmer lassen, für Wohlfühlatmosphäre.
- Mehrschicht-Fertigparkett...
Preisinformation
1 Stellplatz, Miete: 130,00 EUR
Weitere Informationen
Sonstiges
Wir bitten Sie Terminanfragen über das Kontaktformular zu senden.
Bei den Bildern handelt es sich um unverbindliche Visualisierungen und Bilder der Musterwohnung. Gerne können Sie sich im Zuge einer Besichtigung der Musterwohnung selbst vom FRIEDA'S überzeugen.
HAFTUNGSAUSSCHLUSS:
Diese Anzeige...
Anbieter der Immobilie
Müller Merkle Immobilien GmbH
Galileistraße 1, 69115 Heidelberg
Frau Stefanie Koch
Dein Ansprechpartner
Kontaktiere den Anbieter schriftlich, es ist keine Telefonnummer hinterlegt.
Online-ID: 2l9y95z
Referenznummer: R5-W132#EpnLD
Finde Angebote wie dieses
Hier geht es zu unserem Impressum, den Allgemeinen Geschäftsbedingungen, den Hinweisen zum Datenschutz und nutzungsbasierter Online-Werbung.