

makellos ... die anderen immobilienmakler ! GmbH & Co. KG
Herr Günther Christian
+49 ···
Nr. anzeigenPreise & Kosten
Provision für Käufer
3,57 % inkl. 19 % USt.
Lage
- Mecklenburg-Vorpommern
- Landkreis Rostock
- Gemeinde Elmenhorst-Lichtenhagen
- westlicher „Speckgürtel“ von Rostock
- in Ostseenähe ca. 1,6 km
- direkter unverbaubarer Blick auf den Küstenwald
- Warnemünde ca. 7 km
- Rostock ca. 13 km
Das Haus
Kategorie
Reihenmittelhaus
Baujahr
1998
Bezug
nach Vereinbarung
Derzeitige Nutzung
frei
Energie & Heizung
Warum sehe ich diese Anzeige? – Du siehst diese Anzeige basierend auf Ihrer Navigation auf unserer Website und den Suchkriterien, die du verwendet hast.
Weitere Energiedaten
Haustyp
Massivhaus
Energieträger
Gas
Heizungsart
Zentralheizung
Details
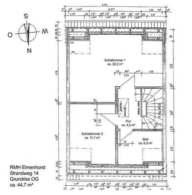
Objektbeschreibung
Objektart:
- Reihenmittelhaus (RMH)
- EG, OG, DG
- Terrasse
- 2 Kfz-Außenstellplätze
Wohnfläche:
- ca. 106 m²
Grundstück:
- 169 m²
Sonstiges:
- Baujahr 1998
- renoviert 2025
- sehr guter optischer und baulicher Zustand
- Massivbau, Klinkerfassade, Ziegeldach
-...
Weitere Informationen
Maklercourtage
Der Makler-Vertrag kommt durch schriftl. Vereinbarung oder Inanspruchnahme der Maklertätigkeit auf der Basis des Exposés und seiner Bedingungen zustande. Die Käufercourtage in Höhe von 3,57 % auf den Kaufpreis einschließlich gesetzl. USt. ist bei notariellem Vertragsabschluss verdient und fällig. Der Makler...
Anbieter der Immobilie
makellos ... die anderen immobilienmakler ! GmbH & Co. KG
Riekdahl, 6, 18055 Rostock

Online-ID: 2la3x5n
Referenznummer: ml-H-2025-30
Finde Angebote wie dieses
Hier geht es zu unserem Impressum, den Allgemeinen Geschäftsbedingungen, den Hinweisen zum Datenschutz und nutzungsbasierter Online-Werbung.