

Kompass Immobilien Ratisbona
Frau Carola von Nordheim-Gehr
+49 ···
Nr. anzeigenPreise & Kosten
Provision für Käufer
provisionsfrei
Lage
Regensburg als Weltkulturerbe zählt zu den beliebtesten Städten Deutschlands. Namhafte Firmen haben sich hier niedergelassen und sorgen somit für zahlreiche Arbeitsplätze.
Das Objekt entsteht im Stadtteil Konradsiedlung-Wutzlhofen, welcher ca. 1 km nördlich des Stadtbezirkes Reinhausen, damit 2 km nördlich der Donau...
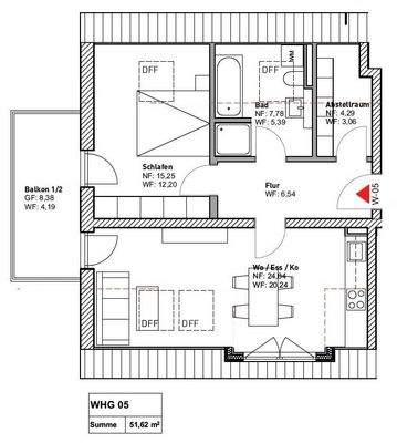
Die Wohnung
Wohnungslage
2. Geschoss (Dachgeschoss)
Bezug
sofort
Wohnanlage
Energie & Heizung
Warum sehe ich diese Anzeige? – Du siehst diese Anzeige basierend auf Ihrer Navigation auf unserer Website und den Suchkriterien, die du verwendet hast.
Weitere Energiedaten
Energieträger
Elektro
Details
Objektbeschreibung
Provisionsfrei vom Bauträger !!!
Dieses ruhig gelegene 6-Familienhaus wurde zum 1. Oktober 2025 fertig gestellt und kann sofort bezogen werden.
Als Highlight kann man bezeichnen, dass Sie bei Erwerb der Wohnung von der KfW-Bank ein Darlehen in Höhe von € 150.000,-- zu einem Zinssatz von 0,78 % und einen...
Ausstattung
- KfW 55 EE Energiestandard (Darlehen über € 150.000,-- steht zur Verfügung und wird überschrieben, Förderung i. H. v. € 26.500,--)
- Fußbodenheizung (mit Fußbodenkühlung für den Sommer)
- EG-Wohnungen mit Terrasse und Garten
- OG und DG-Wohnungen mit Balkonen
- Balkonkraftwerke auf den Balkonen möglich und...
Preisinformation
1 Garagenstellplatz, Kaufpreis: 35.000,00 EUR
Weitere Informationen
Stichworte
Tiefgarage vorhanden, Anzahl der Schlafzimmer: 1, Anzahl der Badezimmer: 1, 2 Etagen
Anbieter der Immobilie

Online-ID: 2la4j57
Referenznummer: 5722#p7AsFh
Finde Angebote wie dieses
Weitere Immobilien
Hier geht es zu unserem Impressum, den Allgemeinen Geschäftsbedingungen, den Hinweisen zum Datenschutz und nutzungsbasierter Online-Werbung.