
Home Hunts
Herr Francois De Vial
+33 ···
Nr. anzeigenPreise & Kosten
Provision für Käufer
Bitte beachte, das Angebot kann bei Vertragsabschluss die Zahlung einer Provision beinhalten. Weitere Informationen erhältst Du vom Anbieter.
Die Wohnung
Bezug
ab sofort
Details
Objektbeschreibung
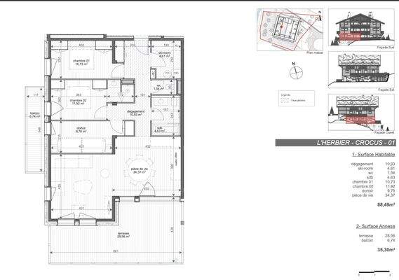
This 3-bedroom apartment with breathtaking views is located on the heights of Manigod at an altitude of 1,400 m in a small, luxury residence with five apartments.
This condominium was built with high-quality materials and the finest local craftsmen.
Its view and exceptional south-facing location guarantee...
Anbieter der Immobilie
Home Hunts
55 Rue saint Ferreol, 13001 MARSEILLE
Online-ID: 2lac856
Referenznummer: HH-15892114/HH-15892114/HH-15892114
Finde Angebote wie dieses
Hier geht es zu unserem Impressum, den Allgemeinen Geschäftsbedingungen, den Hinweisen zum Datenschutz und nutzungsbasierter Online-Werbung.