
Bank 1 Saar Immobilien GmbH
Herr Carlos Leclere
068 ···
Nr. anzeigenPreise & Kosten
Provision für Käufer
3,57 % inkl. MwSt.
Lage
Lage - Nußberg/Reppersberg:
Die Lage der Immobilie gehört zu den begehrtesten Stadtteilen Saarbrückens und überzeugt durch historisches Flair, gehobene Wohnqualität und perfekte Infrastruktur. Einkaufsmöglichkeiten, Ärzte, Schulen, Gastronomie sowie die Nähe zur Saarbrücker Innenstadt machen die Lage äußerst attraktiv...
Das Haus
Kategorie
Einfamilienhaus
Baujahr
1848
Energie & Heizung
Warum sehe ich diese Anzeige? – Du siehst diese Anzeige basierend auf Ihrer Navigation auf unserer Website und den Suchkriterien, die du verwendet hast.
Energieausweistyp
Bedarfsausweis
Gebäudetyp
Wohngebäude
Baujahr laut Energieausweis
1848
Wesentliche Energieträger
Öl
Gültigkeit
14.08.2025 bis 13.08.2035
Effizienzklasse
F
Endenergiebedarf
182,40 kWh/(m²·a)
Weitere Energiedaten
Energieträger
Öl
Details
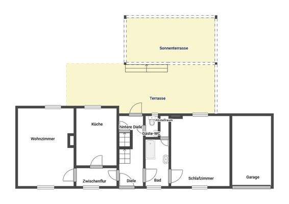
Objektbeschreibung
Haus mit Geschichte und hohem Potenzial in Toplage Alt-Saarbrücken am Reppersberg/Nußberg
Dieses charaktervolle Haus mit Geschichte befindet sich in einer der besten Lagen Saarbrückens, in gefragter Lage im Stadtteil Alt-Saarbrücken auf dem Reppersberg und bietet einen unvergleichlichen Ausblick.
In Saarbrücker...
Ausstattung
Grundstück und Bebauung:
Das Grundstück mit insgesamt 1,656 Quadratmetern ist aktuell stark bewachsen, bietet jedoch bei Freilegung aufgrund seines terrassierten Berggartens schöne Gestaltungsmöglichkeiten.
Es besteht im unteren Bereich ein direkter Zugang zu einer Treppe, die zur Feldmannstraße führt.
Mit...
Weitere Informationen
Sonstiges
Highlights im Überblick:
? Exklusive Aussichtslage in Saarbrücken am Reppersberg/Nußberg
? Großzügige Grundstücksbreite - ideal für Umbau oder Neubau
? Potenzial für Terrassenhaus oder Mehrfamilienhaus (Bauvoranfrage erforderlich)
? Sonnenterrasse mit doppeltem Unterbau für zusätzliche Nutzung
...
Anbieter der Immobilie
Bank 1 Saar Immobilien GmbH
Kaiserstr. 17-19, 66111 Saarbrücken
Online-ID: 2laea5c
Referenznummer: 006695-p
Finde Angebote wie dieses
Hier geht es zu unserem Impressum, den Allgemeinen Geschäftsbedingungen, den Hinweisen zum Datenschutz und nutzungsbasierter Online-Werbung.