
Scherf Profi Immobilien Service GmbH
Herr Norbert Scherf
065 ···
Nr. anzeigenPreise & Kosten
Provision für Käufer
provisionsfrei
Lage
Pluwig, gefragter Wohnort mit sehr guter Infrastruktur nur wenige KM von Trier entfernt.
Im Ort finden Sie alle Einrichtungen des täglichen Bedarfs, teilweise sogar in fußläufiger Entfernung.
Die Häuser werden am Ende einer Sackgasse ohne Durchgangsverkehr errichtet.
Über einen Fußweg erreichen Sie unmittelbar das...
Das Haus
Kategorie
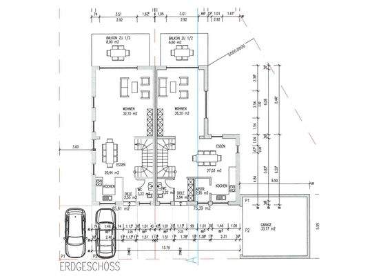
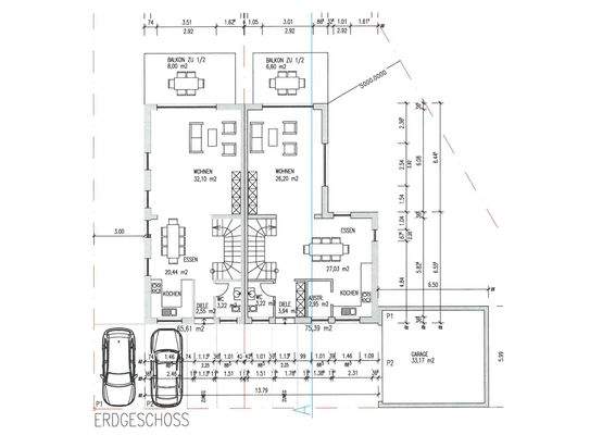
Doppelhaushälfte
Baujahr
2025
Bezug
Anfang 2026
Derzeitige Nutzung
frei
Energie & Heizung
Warum sehe ich diese Anzeige? – Du siehst diese Anzeige basierend auf Ihrer Navigation auf unserer Website und den Suchkriterien, die du verwendet hast.
Weitere Energiedaten
Haustyp
KfW 55, Massivhaus
Heizungsart
Fußbodenheizung
Details
Objektbeschreibung
Viel Platz für die Familie - Neues attraktives Energiesparhaus in schöner Lage von Pluwig mit herrlicher Weitsicht. Neue Einfamilienhäuser als Doppelhausbebauung in schöner Lage von Pluwig.
Hier entstehen 2 Wohnhäuser in massiver Ausführung (Stein auf Stein) mit guter Ausstattung sowie attraktiven Grundrissen. Die Häuser...
Ausstattung
Neue Einfamilienhäuser als Doppelhausbebauung in schöner Lage von Pluwig.
Hier entstehen 2 Wohnhäuser in massiver Ausführung (Stein auf Stein) mit guter Ausstattung sowie attraktiven Grundrissen. Die Häuser werden voll unterkellert und verfügen jeweils über eine eigene Beheizung, Ver- und Entsorgung. Eine gute...
Preisinformation
2 Stellplätze
Weitere Informationen
Sonstiges
Der Energieausweis liegt vor.
Dieser wird dem Interessenten vor dem Besichtigungstermin mit dem Exposé zur Verfügung gestellt.
Vereinbaren Sie einen Beratungs bzw. Besichtigungstermin ! Gerne sind wir Ihnen bei der Gestaltung Ihrer Finanzierung behilflich. Die Zinsen können z.B. auf die Dauer von 10...
Anbieter der Immobilie
Online-ID: 2laeh5t
Referenznummer: EFHNBBPL123
Finde Angebote wie dieses
Hier geht es zu unserem Impressum, den Allgemeinen Geschäftsbedingungen, den Hinweisen zum Datenschutz und nutzungsbasierter Online-Werbung.