

jn Deutscher Immobilien GmbH
Herr Torsten Jungfer
035 ···
Nr. anzeigenPreise & Kosten
Provision für Käufer
3,57 % vom Kaufpreis inkl. MwSt.
Lage
Strehla ist eine Kleinstadt mit ca. 4.000 Einwohnern im Bundesland Sachsen / Landkreis Meißen gelegen. Die Stadt profitiert von seiner verkehrsgünstigen Lage an der Bundesstraße 182 am Rande der Elbniederungen, und hat sich zu einem bevorzugten Wohnort und touristischen Anziehungspunkt entwickelt. Die Wirtschaft des Ortes ist...
Das Haus
Geschosse
2 Geschosse
Baujahr
1900
Energie & Heizung
Warum sehe ich diese Anzeige? – Du siehst diese Anzeige basierend auf Ihrer Navigation auf unserer Website und den Suchkriterien, die du verwendet hast.
Weitere Energiedaten
Energieträger
Gas
Heizungsart
Zentralheizung
Details
Objektbeschreibung
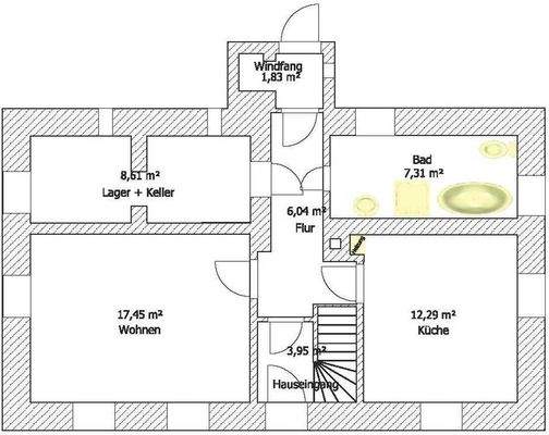
Beim Verkaufsobjekt handelt es sich um Grundstück mit Einfamilienhaus und Ne-bengebäude in zentrumsnaher Siedlungslage von Strehla. Das um 1900 erbaute 1 ½-geschossige Gebäude verfügt über eine Wohnfläche von 96,97 m² bei einer Ge-bäudenutzfläche von 109,30 m².
Die räumliche Aufteilung ermöglicht im Erdgeschoss die...
Weitere Informationen
Besichtigungstermine
Sie möchten gern einen Blick in das Haus werfen? Dann gleich unverbindlich einen Besichtigungstermin per Mail vereinbaren. Wir beraten Sie gern.
Stichworte
Versorgung: Städtische Wasserversorgung, Städtische Stromversorgung
Anbieter der Immobilie

Online-ID: 2lah65l
Referenznummer: EFH 26092025
Finde Angebote wie dieses
Hier geht es zu unserem Impressum, den Allgemeinen Geschäftsbedingungen, den Hinweisen zum Datenschutz und nutzungsbasierter Online-Werbung.