
WINWIN Immobilienvermittlung GmbH
069 ···
Nr. anzeigenPreise & Kosten
Provision für Käufer
3,57 %
Lage
gehobene Lage in einem familienfreundlichen Wohngebiet von Sachsenhausen mit guter Anbindung
Das Renditeobjekt
Baujahr
1972
Bezug
bezugsfrei nach Absprache
Energie & Heizung
Warum sehe ich diese Anzeige? – Du siehst diese Anzeige basierend auf Ihrer Navigation auf unserer Website und den Suchkriterien, die du verwendet hast.
Wärme
Energieausweistyp
Bedarfsausweis
Gebäudetyp
Nicht-Wohngebäude
Baujahr laut Energieausweis
1972
Wesentliche Energieträger
Gas
Gültigkeit
07.09.2025 bis 06.09.2035
Endenergiebedarf (Wärme)
80,49 kWh/(m²·a)
Weitere Energiedaten
Energieträger
Gas
Heizungsart
Zentralheizung
Details
Objektbeschreibung
Video (Haus außen, Garten, Lage): https://vimeo.com/1109068898/8f549578ae
Besichtigung ohne Wartezeit und Fahrtaufwand? Mit dem 360°-Rundgang können Sie alle Innenräume und den Außenbereich vorab online in 3D besichtigen. Die Zugangsdaten und ein detailliertes Exposé mit Objektanschrift erhalten Sie am schnellsten...
Ausstattung
EBENFALLS WISSENSWERT
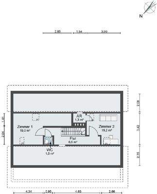
Im Jahr 2011 wurde das Dach um 1,17 m angehoben, eine Dachterrasse ergänzt und der Spitzboden ausgebaut.
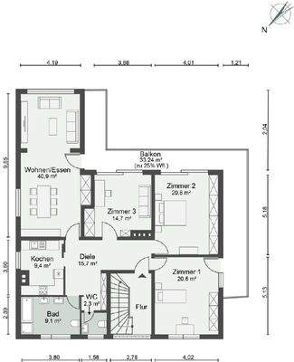
Mit drei separat zugänglichen Wohneinheiten bietet das Haus vielseitige Nutzungsmöglichkeiten: als großzügiges Einfamilienhaus mit Einliegerwohnung oder zur Aufteilung in drei...
Preisinformation
2 Garagenstellplätze
Weitere Informationen
Sonstiges
AUßENANLAGE
- gepflegter Garten in Südostausrichtung mit großer Rasenfläche, zahlreichen Sträuchern und Bäumen sowie Beleuchtung, Außenwasser
- Vorgarten in Nordwestausrichtung; Mülltonnenschränke
- Bepflanzung: Rasen, diverse Bäume, Zeder, Bambus, Beerensträucher, Hortensien, Rosen
- Zuwegung...
Anbieter der Immobilie

WINWIN Immobilienvermittlung GmbH
Online-ID: 2lah65u
Referenznummer: 27754
Finde Angebote wie dieses
Hier geht es zu unserem Impressum, den Allgemeinen Geschäftsbedingungen, den Hinweisen zum Datenschutz und nutzungsbasierter Online-Werbung.