
Crozilla.com
BROKER-GRUPA d.o.o.
+38 ···
Nr. anzeigenPreise & Kosten
Provision für Käufer
Bitte beachte, das Angebot kann bei Vertragsabschluss die Zahlung einer Provision beinhalten. Weitere Informationen erhältst Du vom Anbieter.
Die Immobilie
Zu diesem Angebot wurden vom Anbieter keine weiteren Daten hinterlegt. Für weitere Informationen bitte den Anbieter kontaktieren.
Nach Informationen fragenDetails
Objektbeschreibung
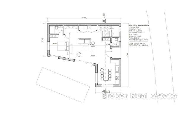
Moderne Villa im Bau mit offenem Meerblick, zu verkaufen, gelegen auf der Südseite der Halbinsel Peljesac. Die Villa erstreckt sich über zwei Etagen, mit einer Gesamtwohnfläche von 162 m². Der Innenbereich verfügt über vier geräumige Schlafzimmer und drei Badezimmer und ist somit ideal für Familien oder Käufer, die einen...
Weitere Informationen
Stichworte
Anzahl der Schlafzimmer: 4, Anzahl der Badezimmer: 3
Anbieter der Immobilie
Crozilla.com
Nova cesta 60, 10000 ZAGREB
Online-ID: 2lajx59
Referenznummer: 17108804_8
Finde Angebote wie dieses
Hier geht es zu unserem Impressum, den Allgemeinen Geschäftsbedingungen, den Hinweisen zum Datenschutz und nutzungsbasierter Online-Werbung.