
Zebra-See Immobilien GmbH
Frau Sadija Zekaj
Kontaktiere den Anbieter schriftlich, es ist keine Telefonnummer hinterlegt.
Preise & Kosten
Provision für Käufer
provisionsfrei
Lage
Radolfzell am Bodensee ist eine malerische Kleinstadt in Baden-Württemberg und überzeugt mit ihrer Lage am westlichen Ufer des Bodensees. Die Stadt bietet eine hohe Lebensqualität mit einer gelungenen Mischung aus historischem Charme, moderner Infrastruktur und vielfältigen Freizeitmöglichkeiten. Dank ihrer hervorragenden...
Die Wohnung
Wohnungslage
3. Geschoss (Dachgeschoss)
Wohnanlage
Energie & Heizung
Warum sehe ich diese Anzeige? – Du siehst diese Anzeige basierend auf Ihrer Navigation auf unserer Website und den Suchkriterien, die du verwendet hast.
Energieausweistyp
Bedarfsausweis
Gebäudetyp
Wohngebäude
Baujahr laut Energieausweis
2021
Gültigkeit
24.06.2022 bis 23.06.2032
Effizienzklasse
A
Endenergiebedarf
39,00 kWh/(m²·a)
Weitere Energiedaten
Heizungsart
Luft-/Wasser-Wärmepumpe
Details
Objektbeschreibung
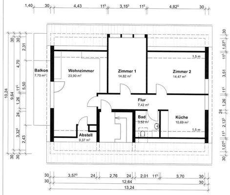
Diese moderne Dachgeschosswohnung bietet eine Wohnfläche von 80,66 m² und befindet sich im dritten Obergeschoss eines Neubaus aus dem Jahr 2023. Die Wohnung verfügt über drei Zimmer, darunter zwei Schlafzimmer, sowie ein Badezimmer mit Fenster und Dusche. Der großzügige Balkon lädt zum Entspannen ein. Praktischen Stauraum...
Ausstattung
Die besten Materialien und Sanitärartikel, Fliesen, Echtholzparkett (Eiche dreifach geölt und handgehobelt) sorgen für einen luxuriösen Baustil dieser Wohnung. In zweieinhalb Jahren wurde dieses Objekt von uns liebevoll saniert und zukunftssicher mit heimischen Handwerksfirmen umgebaut und ausgestattet. Die beiden neuen...
Preisinformation
1 Stellplatz, Kaufpreis: 12.500,00 EUR
Weitere Informationen
Sonstiges
Ein Außenstellplatz kann für 12.500 EUR oder optional eine Garage mit einem dazugehörigen Abstellraum und einem davorliegenden Stellplatz für 37.000 Euro erworben werden.
Stichworte
Stellplatz vorhanden, Anzahl der Schlafzimmer: 2, Anzahl der Badezimmer: 1, Anzahl Balkone: 1, 3 Etagen, modernisiert...
Dokumente
Anbieter der Immobilie
Frau Sadija Zekaj
Dein Ansprechpartner
Kontaktiere den Anbieter schriftlich, es ist keine Telefonnummer hinterlegt.
Online-ID: 2lakg5k
Referenznummer: 25 (1/25)
Finde Angebote wie dieses
Hier geht es zu unserem Impressum, den Allgemeinen Geschäftsbedingungen, den Hinweisen zum Datenschutz und nutzungsbasierter Online-Werbung.