

Immobilienbüro Riessler
Herr Uwe Riessler
022 ···
Nr. anzeigenPreise & Kosten
Provision für Käufer
provisionsfrei
Lage
Die kleine Ortsgemeinde Oberirsen gehört zum Landkreis Altenkirchen im Westerwald; das historische Anwesen befindet sich im Ortsteil Marenbach.
Der nächst gelegene, größere Ort "Weyerbusch" befindet sich lediglich knappe 5 Fahrminuten entfernt und ist auch zu Fuß über einen Gehweg problemlos in 15-20 Minuten...
Das Haus
Kategorie
Herrenhaus
Geschosse
2 Geschosse
Baujahr
1888
Derzeitige Nutzung
frei
Energie & Heizung
Warum sehe ich diese Anzeige? – Du siehst diese Anzeige basierend auf Ihrer Navigation auf unserer Website und den Suchkriterien, die du verwendet hast.
Energieausweis: für diesen Gebäudetyp nicht notwendig
Weitere Energiedaten
Energieträger
Gas
Details
Objektbeschreibung
Der idyllische Traumblick gartenseits über Felder und Wiesen ist sensationell.
Besonders wichtig zu erwähnen ist der Umstand, dass in einen Teil der historischen Scheune (bereits teilweise saniert) bis zu zwei weitere Wohneinheiten mit insgesamt 159 m² Wohnfläche hergestellt werden dürfen. Eine Baugenehmigung wurde...
Ausstattung
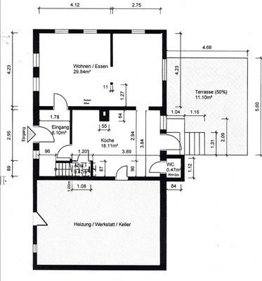
Insgesamt verteilen sich die acht Zimmer des Wohnhauses auf zwei Etagen.
Die aufwendig sanierten Sichtbalken des Fachwerkes sowie die teils - in zeitraubender Handarbeit restaurierten - Originalböden im Haupthaus verleihen den Räumen einen ganz besonderen Charme.
Die nicht mehr widerherstellbaren...
Weitere Informationen
Sonstiges
Die Objektangaben erhalten wir i. d. Regel vom Verkäufer; eine Gewähr für deren Richtigkeit kann deshalb nicht übernommen werden.
Ein Zwischenverkauf bleibt vorbehalten.
Die Grundrisspläne sind teilweise überarbeitet und sind nicht maßstabsgerecht.
*** Keine Käuferprovision ***
Anbieter der Immobilie
Immobilienbüro Riessler
Europaallee 33b, 50226 Frechen

Online-ID: 2lakp5b
Finde Angebote wie dieses
Hier geht es zu unserem Impressum, den Allgemeinen Geschäftsbedingungen, den Hinweisen zum Datenschutz und nutzungsbasierter Online-Werbung.