
Immobilien- & Hausverwaltung Lessmann
Firma Nadine Wenzel
091 ···
Nr. anzeigenPreise & Kosten
Kaution
3675
Warum sehe ich diese Anzeige? – Du siehst diese Anzeige basierend auf Ihrer Navigation auf unserer Website und den Suchkriterien, die du verwendet hast.
Lage
Der La Garde Komplex befindet sich in einer attraktiven und
ruhigen Wohngegend in Bamberg, einer Stadt, die für ihre
historische Altstadt und ihr reiches kulturelles Erbe bekannt ist.
Die Lorenz-Krapp-Straße liegt in unmittelbarer Nähe zu
zahlreichen Annehmlichkeiten, die das tägliche Leben
erleichtern.
In...
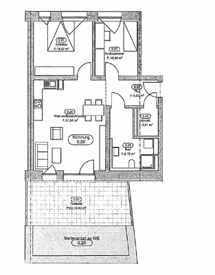
Die Wohnung
Kategorie
Terrassenwohnung
Wohnungslage
Erdgeschoss
Bezug
sofort
Derzeitige Nutzung
frei
Wohnanlage
Energie & Heizung
Warum sehe ich diese Anzeige? – Du siehst diese Anzeige basierend auf Ihrer Navigation auf unserer Website und den Suchkriterien, die du verwendet hast.
Energieausweistyp
Bedarfsausweis
Gebäudetyp
Wohngebäude
Weitere Energiedaten
Heizungsart
Fußbodenheizung
Details
Objektbeschreibung
In dieser ansprechenden 3-Zimmer-Wohnung erleben Sie modernen Wohnkomfort in einer hochwertigen Ausstattung. Sie ist ideal für Paare oder kleine Familien, die Wert auf Qualität und eine einladende Atmosphäre legen. Eingebettet in eine liebevoll gepflegte Wohnanlage überzeugt die Einheit mit einer durchdachten Raumaufteilung...
Ausstattung
Der offene Wohnbereich dieser Wohnung beeindruckt mit seinen hellen, verputzten Wänden und dem eleganten Design-Vinylboden in Echtholz-Optik, der eine warme Atmosphäre schafft und Sie sofort willkommen heißt. Das hochwertig ausgestattete Badezimmer ist ein wahres Highlight, mit einer großzügigen Dusche, die durch moderne...
Weitere Informationen
Haben Sie Interesse an unserer hochwertigen Wohnung auf dem
La Garde Gelände in Bamberg?
Kontaktieren Sie uns gerne unter info@ihv-lessmann.de um
weitere Informationen zu erhalten.
Wir freuen uns auf Ihre Nachricht und stehen Ihnen bei Fragen
gerne zur Verfügung!
Immobilien- und Hausverwaltung Lessmann
Anbieter der Immobilie
Online-ID: 2lalk5d
Referenznummer: IHV-G-WHG20-AK
Finde Angebote wie dieses
Hier geht es zu unserem Impressum, den Allgemeinen Geschäftsbedingungen, den Hinweisen zum Datenschutz und nutzungsbasierter Online-Werbung.