

Volksbank Immobilien Münsterland GmbH
Frau Melanie Wittkemper
025 ···
Nr. anzeigenPreise & Kosten
zzgl. Nebenkosten
Kaution
4.860,00
Provision für Mieter
Bitte beachte, das Angebot kann bei Vertragsabschluss die Zahlung einer Provision beinhalten. Weitere Informationen erhältst Du vom Anbieter.
Warum sehe ich diese Anzeige? – Du siehst diese Anzeige basierend auf Ihrer Navigation auf unserer Website und den Suchkriterien, die du verwendet hast.
Lage
Drensteinfurt ist eine eher kleine Stadt mit ländlichem Charakter. Hier kann man in der schönen Umgebung der münsterländischen Parklandschaft naturnah wohnen und leben. Die Stadt verfügt über eine gute Infrastruktur und Verkehrsanbindung, so dass die Städte und Gemeinden in der näheren und weiteren Umgebung sehr gut zu...
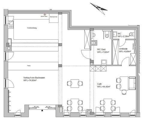
Die Ladenfläche
Kategorie
Verkaufsfläche
Baujahr
2025
Energie & Heizung
Warum sehe ich diese Anzeige? – Du siehst diese Anzeige basierend auf Ihrer Navigation auf unserer Website und den Suchkriterien, die du verwendet hast.
Wärme
Energieausweistyp
Bedarfsausweis
Gebäudetyp
Nicht-Wohngebäude
Baujahr laut Energieausweis
2023
Gültigkeit
bis 18.09.2035
Endenergiebedarf (Wärme)
21,00 kWh/(m²·a)
Details
Objektbeschreibung
Willkommen im Herzen von Drensteinfurt! Diese hochmoderne Gewerbe-/Praxisfläche im Erdgeschoss bietet eine perfekte Gelegenheit für jeden Unternehmer, der auf der Suche nach einer außergewöhnlichen Location ist, um ein Geschäftsvorhaben zu verwirklichen.
Zwei Stellplätze mit Wallbox stehen direkt vor der Tür zur...
Ausstattung
ALLGEMEIN:
- Zentrale Lage am Schloss in Drensteinfurt
- Wohn- und Geschäftshaus (Gewerbe-/Praxisfläche)
- Nutzfläche ca. 136 m²
- Fertigstellung ist erfolgt
- 2 Stellplätze mit Wall-Box
ENERGIEEFFIZIENZ:
- Der Wärmeschutz des Hauses erfüllt die Anforderungen an das Gebäudeenergiegesetz Stand 01/2022...
Preisinformation
2 Stellplätze
Weitere Informationen
Sonstiges
Die Immobilienangebote verstehen sich freibleibend und unverbindlich. Zwischenverkauf ausdrücklich vorbehalten. Die Objektbeschreibungen wurde aufgrund der Angaben der Verkäufer erstellt. Für die Richtigkeit wird keine Haftung übernommen. Mit dem Eigentümer wurde vereinbart, dass Besichtigungen nur gemeinsam mit...
Anbieter der Immobilie
Volksbank Immobilien Münsterland GmbH
Neubrückenstr. 66, 48143 Münster

Online-ID: 2lapt5x
Referenznummer: 20476
Finde Angebote wie dieses
Hier geht es zu unserem Impressum, den Allgemeinen Geschäftsbedingungen, den Hinweisen zum Datenschutz und nutzungsbasierter Online-Werbung.