CL-immogroup

Herr Karl Pitzmann

Moderne 2-Zimmer-Gartenwohnung im eleganten Neubau - Wohnen mit Stil und Ruhe

€ 359.000
Kaufpreis
54,95 m²
Wohnfläche ca.
2
Zimmer
Finanzierung berechnen mit durchblicker

Der Anbieter dieses Objekts hat gegenüber der AVIV Germany GmbH als Betreiber dieses Online-Marktplatzes erklärt, nicht als Unternehmer im Sinne des § 1 KSchG zu handeln. Die im Verbraucherschutzrecht der Union verankerten Verbraucherrechte (insbesondere Informationspflichten und Rücktritts- bzw. Widerrufsrechte) finden auf den Vertrag zwischen dem Anbieter des Objekts und Ihnen (dem Interessenten) keine Anwendung.

Gewerblicher Anbieter

Der Anbieter dieses Objekts hat gegenüber der AVIV Germany GmbH als Betreiber dieses Online-Marktplatzes erklärt, als Unternehmer im Sinne des § 1 KSchG zu handeln.

AdresseStraße nicht freigegeben
5202 Neumarkt am Wallersee 
Auf Karte ansehen

Preise & Kosten

Kaufpreis € 359.000

Provision für Käufer

3% des Kaufpreises zzgl. 20% USt.

Lage

Siehe Lageexposé!

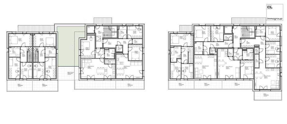
Die Wohnung

  • Bad mit Wanne und Dusche, Gäste-WC
  • Terrasse
  • Böden: Holzdielen, Fliesenboden
  • Zustand: Erstbezug
  • Weitere Räume: Abstellraum
  • Anschlüsse: Kabelanschluss

Wohnanlage

  • Baujahr: 2025
  • Zustand: Neubau
  • Personenaufzug

Energie & Heizung

Weitere Energiedaten

Heizungsart

Luft-/Wasser-Wärmepumpe

Details

Objektbeschreibung

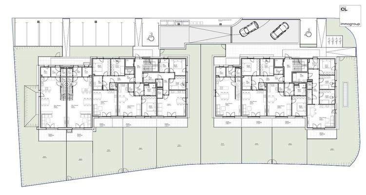
LOGENPLATZ IM GRÜNEN

Das Neubauprojekt mit zwei Wohnhäusern und insgesamt siebzehn modernen Wohneinheiten in der Stadtgemeinde Neumarkt am Wallersee bietet hohe Wohnqualität gepaart mit moderner Architektur und attraktiven Außenflächen. Die nachhaltige Bauweise, das durchdachte Raumkonzept, der Fokus auf hohe...

Mehr anzeigen

Weitere Informationen

Stichworte
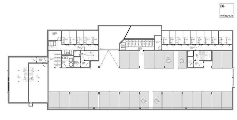
Stellplatz vorhanden, Tiefgarage vorhanden, Fahrradraum, Rolladen, Anzahl der Badezimmer: 1, Anzahl der separaten WCs: 1, Anzahl Terrassen: 1, Balkon-Terrassen-Fläche: 14,26 m², Gartenfläche: 59,29 m², Kellerfläche: 6,84 m², Bundesland: Salzburg, 1 Etagen

Sonstiges: Neubaustandard

Dokumente

file_pdfDokument 1angle_right

Anbieter der Immobilie

Partner

CL-immogroup

im Durchschnitt  2,80  Sterne
(bei 3 Bewertungen)

Rainerstr. 12, A 5310 MONDSEE

user

Herr Karl Pitzmann

Dein Ansprechpartner

Anbieter-Profil Anbieter-Impressum

Online-ID: 2lar25f

Referenznummer: OBGC2025080111342088138851a0d3f

Finde Angebote wie dieses

imageimageimage

Günstige Immobilienfinanzierung einfach online berechnen

Persönliches Angebot berechnen

Hier geht es zu unserem Impressum, den Allgemeinen Geschäftsbedingungen, den Hinweisen zum Datenschutz und nutzungsbasierter Online-Werbung.