

LOFT21 Immobilien
Herr Abdel Abou-Khalil
+49 ···
Nr. anzeigenPreise & Kosten
Provision für Käufer
3,57 % inkl. MwSt.
Lage
Das Grundstück in Manching bietet durch seine zentrale Lage im Musikviertel eine hohe Wohnqualität. Die geplante Doppelhausbebauung berücksichtigt moderne Architektur und hochwertige Ausstattung, die den Bedürfnissen heutiger Wohnansprüche gerecht werden.
Manching liegt verkehrsgünstig an der Autobahn A9 und befindet sich...
Das Haus
Kategorie
Doppelhaushälfte
Energie & Heizung
Warum sehe ich diese Anzeige? – Du siehst diese Anzeige basierend auf Ihrer Navigation auf unserer Website und den Suchkriterien, die du verwendet hast.
Energieausweis: für diesen Gebäudetyp nicht notwendig
Weitere Energiedaten
Heizungsart
Fußbodenheizung, Luft-/Wasser-Wärmepumpe
Details
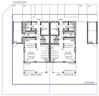
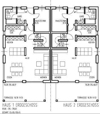
Objektbeschreibung
In einer der besten und ruhigsten Wohnlagen von Manching entsteht auf einem ca. 739 m² großen Grundstück ein modernes und hochwertiges Doppelhausprojekt. Das Grundstück wird im Zuge der Bebauung in zwei annähernd gleich große Teilgrundstücke aufgeteilt. Geplant ist der Bau von zwei großzügigen Doppelhaushälften, die mit...
Ausstattung
Eckdaten im Überblick:
.Gesamtgrundstücksfläche: ca. 739 m² (vor Teilung)
. Grundstücksfläche: ca. 372 m² (nach Teilung)
.Geplante Wohnfläche je Doppelhaushälfte: ca. 141 m²
.Bauweise: Massivbau (KfW 55-Standard)
.Pkw-Stellplatz im Kaufpreis enthalten
.Optional: Garage für 15.000 €
.Ohne Keller...
Preisinformation
1 Stellplatz
1 Garagenstellplatz
Weitere Informationen
Sonstiges
Die Vermittlung dieser Immobilie erfolgt ausschließlich durch LOFT21 Immobilien. Mit Ihrer Anfrage und der Inanspruchnahme der Dienstleistungen der LOFT21 Immobilien GmbH & Co. KG kommt ein Maklervertrag zustande. Wir bitten Sie zudem, unsere Allgemeinen Geschäftsbedingungen zu beachten.
Wir möchten...
Anbieter der Immobilie

Online-ID: 2lazz5a
Referenznummer: 2025VK646
Finde Angebote wie dieses
Hier geht es zu unserem Impressum, den Allgemeinen Geschäftsbedingungen, den Hinweisen zum Datenschutz und nutzungsbasierter Online-Werbung.