




Bürofläche zur Miete1.728 €3 Zimmer • 143,9 m² Bürofläche
1.728 €
3 Zimmer • 143,9 m² Bürofläche
3 Büroräume, Dachterrasse, Fahrstuhl und Tiefgararage in BO Zentrum
Merkmale
- Bezug: Kurzfristige Übernahme möglich.
- 3. Geschoss
- Personenaufzug
- Tiefgarage
- Barrierefrei
- kontrollierte Be- und Entlüftungsanlage
- Bodenbelag: Fliesen
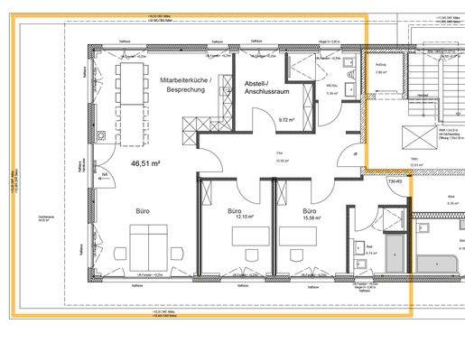
Grundrisse
Grundrisse
1 / 1
Realisiere Dein Projekt
Bausubstanz und Energie
Energieausweis
- Baujahr2023
- Zustand der ImmobilieNeubau
- HaustypKfW 55
- HeizungsartFußbodenheizung
- EnergieträgerLuft-/Wasser-Wärmepumpe
Mietkosten
Nettomiete
1.728 €
Nebenkosten
350 €
Provision für Mieter
2,38 Netto-Monatsmieten inkl. 19 % MwSt.
Kaution
3 Netto-Monatsmieten.
Lage

Innenstadt, Bad Oeynhausen (32545)
Der Anbieter hat die genaue Adresse nicht freigegeben
Weitere Informationen
Weitere Services
Lust auf eine Besichtigung?
Eine Frage zur Immobilie?
Über den Anbieter
Friedemann Immobilien e.K.Maklerbüro
Detmolder Str. 44, 32545 Bad Oeynhausen
Partnerschaft

Frau Nadine BajwaDein Kontakt
Online-ID: 2lb695q
Referenznummer: K3250


Friedemann Immobilien e.K.
Wie zufrieden bist du mit dieser Seite (nicht mit der Immobilie selbst)?

